Property Details

Featured in:

Winners:

Featured in:

Winners:

83246 Range Road 211
Rural Northern Sunrise County (A2236129)

$695,000
6
2+2
2,688 ft²
Loading Listing...

Loan Term
Interest Rate
Loan Amount
Annual Tax
Ann. Insurance

* Amounts are estimates only. Final payment amounts may vary.

Description

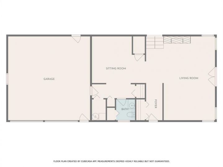
Never Before on the Market – Spacious Acreage Minutes from Peace River Discover the perfect blend of space, privacy, and versatility with this one-of-a-kind 12.3-acre property, on the market for the first time ever. Originally built in 1967 and moved onto a concrete foundation at its current location in 1971, this expansive family home has seen thoughtful updates over the years—including a two-level addition with an attached double garage in 1987 and a full kitchen and bathroom renovation in 2000. Tucked away at the end of a quiet gravel road just minutes from Peace River, this 4-level split home offers an incredible layout across four levels, providing ample room for large families or multi-generational living. With six bedrooms, two full bathrooms, and two half bathrooms, every family member will find their own comfortable space. Ground level: a good-sized sitting room, convenient half bath, and direct access to the attached two-car garage, and a formal living room featuring a beautiful stone fireplace. The next level: Offers an open dining area complete with deck, and a large, renovated kitchen with island—perfect for entertaining. This level also includes a spacious laundry room, full bathroom with jetted soaker tub, and a guest bedroom. Upper level: A generous primary bedroom, two additional bedrooms, and a full bathroom. Basement: Cozy L-shaped family room with a brick fireplace, two more bedrooms, another half bath, and two utility/storage rooms. Outside, the property offers tremendous extras: • A 40’ x 60’ heated shop with a 14’ door. • A 30’ x 50’ tarp shop with power and RV plug-in, and 14' high door. • A 7-site mini campground with full hookups (power, water, and sewer) great for family or perhaps a little side business. Mature trees frame the property offering privacy, while open spaces provide plenty of room for kids, pets, or even a hobby farm, and great for truckers too. Whether you’re seeking a peaceful family retreat or a functional home base with space to work and play, this acreage has it all.

Property details

Basic Info

MLS® #
A2236129
Property Type:
Residential
Subtype:
Detached
Subdivision:
Northern Sunrise County
Price
$695,000
Sale/Lease:
For Sale
Size:
2,688 sq.ft.
Bedrooms:
6
Bathrooms:
2 full / 2 half
Year Built:
1967 (58 years old)

Building Info

Structure Type:
House
Building Style:
4 Level Split, Acreage with Residence
Garage:
Yes
Parking:
Double Garage Detached, Gravel Driveway, RV Access/Parking, RV Garage
Basement:
Finished, Partial
Features:
Breakfast Bar, Ceiling Fan(s), Central Vacuum, Chandelier, Jetted Tub, Kitchen Island, Pantry, Recessed Lighting, Soaking Tub, Sump Pump(s)
Fireplaces:
2
Inclusions:
All out buildings, including sheds, atco trailers, tarp shop.
Appliances:
Built-In Oven, Dishwasher, Electric Cooktop, Microwave, Refrigerator, Trash Compactor, Washer/Dryer, Water Purifier, Window Coverings
Laundry:
Main Level
Exterior Features:
Balcony, Fire Pit, RV Hookup
Patio/Porch Features:
Balcony(s), Deck
Outbuildings:
Equipment Storage, Shed, Drive/Implement Shed, Shop

Neighborhood Info

Nearby Amenities:
None

Acreage/Farm Info

Nearest Town:
Peace River

Lot / Land Info

Lot Size:
12.31 acres
Lot Features:
Cul-De-Sac, Triangular Lot
Legal Land Desc:
14-83-21-W5
Water:
Co-operative
Sewer:
Pump, Septic Tank
Utilities:
Electricity Connected, Natural Gas Connected, Water Connected
Zoning:
Ag

Materials & Systems

Roof:
Asphalt Shingle
Exterior:
Vinyl Siding,Wood Frame
Floors:
Carpet, Ceramic Tile, Hardwood, Linoleum
Foundation:
Poured Concrete
Heating:
In Floor, Forced Air, Natural Gas
Cooling:
None
Amenities:
None

Listing Info

Possession:
Negotiable
Related Properties
Share This Listing
Ask About This Property
  • This site is protected by reCAPTCHA and the Google Privacy Policy and Terms of Service apply.
Your Agent

Grassroots Realty Group Ltd.
1-833-477-6687

Email