Property Details

Featured in:

Winners:

Featured in:

Winners:

1322 34 Street SE
Calgary (A2267763)

$2,750,000
5,824 ft²
Loading Listing...

Loan Term
Interest Rate
Loan Amount
Annual Tax
Ann. Insurance

* Amounts are estimates only. Final payment amounts may vary.

Description

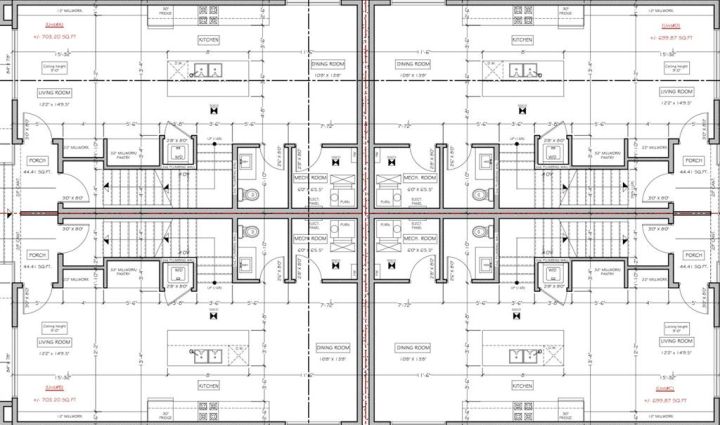
Brand-New 4-Plex in Radisson Heights – Facing Green Space, Legal Basement Suites & Garages Discover an exceptional opportunity to own a newly built, high-performing 4-plex in Radisson Heights, one of Calgary’s most accessible and fast-developing inner-city communities. Purpose-built for investors and modern living, this property combines architectural sophistication, premium finishes, and impressive income potential. Perfectly positioned facing a beautiful green space, the property offers peaceful surroundings and enhanced curb appeal—an ideal balance of urban convenience and open-air tranquility. Each of the four main units features a spacious two-storey layout with 3 bedrooms on the upper level, including a primary suite with private ensuite bathroom. The open-concept main floor offers bright living spaces, designer kitchens with quartz countertops and stainless steel appliances, and luxury vinyl plank flooring throughout for durability and modern style. Every unit includes a fully legal 2-bedroom basement suite with its own private entrance, creating eight self-contained dwellings in total. Each suite is equipped with an independent mechanical room, ensuring separate utilities and ease of management—ideal for maximizing rental flexibility and return. Adding to the property’s functionality and appeal are four private garage parking stalls, offering secure and convenient tenant parking—an attractive feature that enhances both value and marketability. The exterior showcases contemporary architecture, premium materials, and professional landscaping, presenting a cohesive, high-end look rarely found in comparable multi-family developments. Located just minutes from downtown Calgary, with easy access to major roadways, public transit, schools, parks, and amenities, this property is ideally positioned for strong rental demand and long-term growth. Eligible for CMHC Select Financing, this is a rare opportunity to acquire a turnkey, income-generating asset in a prime inner-city location. Contact us today for full details or to schedule a private tour.

Property details

Basic Info

MLS® #
A2267763
Property Type:
Multi-Family
Subtype:
4 plex
Subdivision:
Albert Park/Radisson Heights
Price
$2,750,000
Sale/Lease:
For Sale
Size:
5,824 sq.ft.
Year Built:
2026 (-1 years old)

Building Info

New Construction:
Yes
Builder:
Allure Luxury Homes LTD
Structure Type:
Four Plex
Building Style:
2 Storey
Garage:
No
Fence:
Basement:
No
Inclusions:
N/A

Lot / Land Info

Zoning:
R-CG

Materials & Systems

Roof:
Asphalt Shingle

Listing Info

Possession:
Upon Completion
Related Properties
Share This Listing
Ask About This Property
  • This site is protected by reCAPTCHA and the Google Privacy Policy and Terms of Service apply.
Your Agent

Grassroots Realty Group Ltd.
1-833-477-6687

Email