Property Details

Featured in:

Winners:

Featured in:

Winners:

1, 3307 Dunmore Road SE
Medicine Hat (A2245477)

$15 per sq.ft.
1,000 ft²
Loading Listing...

Loan Term
Interest Rate
Loan Amount
Annual Tax
Ann. Insurance

* Amounts are estimates only. Final payment amounts may vary.

Description

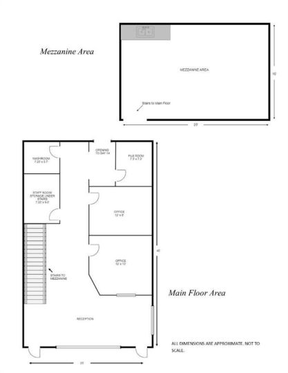
FRONT CORNER BAY in ROSS GLEN BUSINESS PARK AVAILABLE FOR LEASE! This 1,000 square foot commercial front corner bay with additional 400 square foot mezzanine space has high visibility, front reception area, large office, additional office and two storage rooms with washroom and open mezzanine area with sink/staff area. Ross Glen Business Park is home to a variety of businesses including H&R Block, StickFix, Salon 7, Manulife, R&R Massage, Pure Air, Ecoline Windows, Chaotic Xotics and more! Daily estimated traffic count along Dunmore Road is 15,880 vehicles per day. Offered at $15NNN (escalation) plus $8.75/sq.ft. estimated occupancy costs for a total of $1,979.17 plus GST and separately metered utilities per month. Use of the pylon sign is an additional $50.00 per month, If available, plus GST. Utilities are low averaging $100-125 per month. Come and go parking at plaza as not designated and we ask owners/staff to park on street. Plaza is professionally managed.

Property details

Basic Info

MLS® #
A2245477
Property Type:
Commercial
Subtype:
Mixed Use
Subdivision:
NONE
Price
$15 per sq.ft.
Sale/Lease:
For Lease
Size:
1,000 sq.ft.
Year Built:
1996 (29 years old)

Building Info

Structure Type:
Mixed Use
Building Name:
Ross Glen Business Park
Garage:
No
Fence:
Basement:
No
Inclusions:
NA

Lot / Land Info

Zoning:
MU

Materials & Systems

Roof:
Metal
Heating:
Forced Air, Natural Gas
Cooling:
Central Air

Listing Info

Possession:
By Date Specified
Days on Market:
89
Related Properties
Share This Listing
Ask About This Property
  • This site is protected by reCAPTCHA and the Google Privacy Policy and Terms of Service apply.
Your Agent

Grassroots Realty Group Ltd.
1-833-477-6687

Email