Property Details

Featured in:

Winners:

Featured in:

Winners:

406 13 Street N
Lethbridge (A2251420)

$436,500
2,500 ft²
Loading Listing...

Loan Term
Interest Rate
Loan Amount
Annual Tax
Ann. Insurance

* Amounts are estimates only. Final payment amounts may vary.

Description

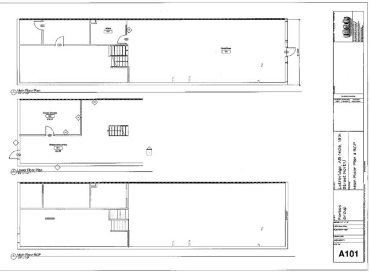
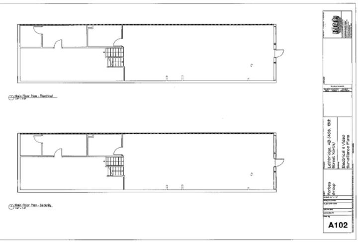
Prime retail opportunity with excellent storefront exposure on highly trafficked 13 Street North in Lethbridge. This versatile space offers both street front and rear alley access, along with convenient customer and staff parking. The building footprint measures ±2,500 sq. ft. with a full basement and sits on 3,126 sq. ft. (0.072 acres) of land in Lethbridge North. Ideally situated near major amenities including Tim Hortons, Centre Village and Westminster Mall, Scotia Bank, Growers Direct Florist, and No Frills Grocery, this location ensures steady foot and vehicle traffic.

Property details

Basic Info

MLS® #
A2251420
Property Type:
Commercial
Subtype:
Retail
Subdivision:
Senator Buchanan
Price
$436,500
Sale/Lease:
For Sale
Size:
2,500 sq.ft.
Year Built:
1966 (59 years old)

Building Info

Structure Type:
Retail
Garage:
No
Fence:
Basement:
No
Inclusions:
None

Lot / Land Info

Lot Size:
0.07 acres
Zoning:
C-G

Listing Info

Possession:
Negotiable
Related Properties
Share This Listing
Ask About This Property
  • This site is protected by reCAPTCHA and the Google Privacy Policy and Terms of Service apply.
Your Agent

Grassroots Realty Group Ltd.
1-833-477-6687

Email