Property Details

Featured in:

Winners:

Featured in:

Winners:

18, 1706 22 Avenue
Didsbury (A2260038)

$160,000
3
1+1
1,181 ft²
Loading Listing...

Loan Term
Interest Rate
Loan Amount
Annual Tax
Ann. Insurance

* Amounts are estimates only. Final payment amounts may vary.

Description

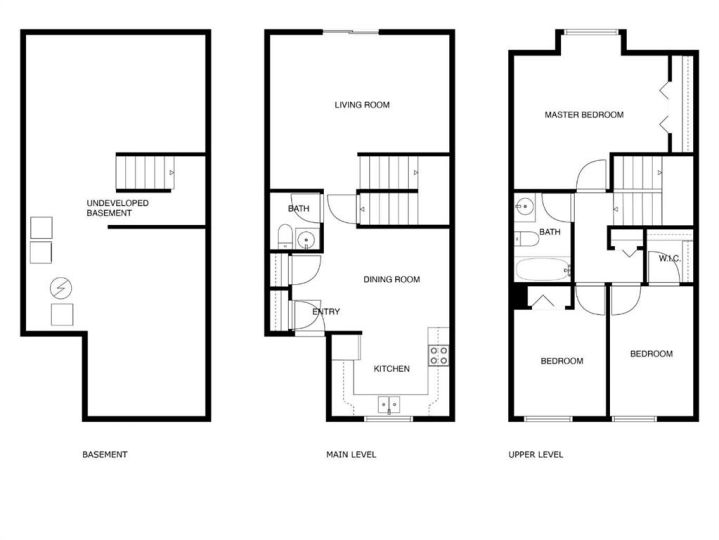
A GREAT PLACE TO START OUT ! This home with 3 bedrooms and 1.5 baths, your own private back yard, and two parking stalls right outside your front door is ready for you to call HOME SWEET HOME ! A good sized kitchen with eating area, a large living room with access to the rear yard, a generous sized master bedroom with a large closet, and one of the secondary bedrooms even has a walk in closet. The unspoiled basement is a great space to store all the little extras, and has great development potential for a family or playroom as well. The complex is well managed, and is across the street from the town's recreation centre that houses the pool, arena, curling rink, and community centre. It's time to stop renting, because home ownership is possible for your family !

Property details

Basic Info

MLS® #
A2260038
Property Type:
Residential
Subtype:
Row/Townhouse
Subdivision:
NONE
Price
$160,000
Sale/Lease:
For Sale
Size:
1,181 sq.ft.
Bedrooms:
3
Bathrooms:
1 full / 1 half
Year Built:
1982 (43 years old)

Building Info

Structure Type:
Five Plus
Building Style:
2 Storey
Garage:
No
Parking:
Stall
Fence:
Fenced
Basement:
Full, Unfinished
Features:
Walk-In Closet(s)
Inclusions:
fridge, stove, hood fan, washer, dryer, all window coverings ( all as is )
Appliances:
See Remarks
Laundry:
In Basement
Exterior Features:
Playground, Private Entrance, Private Yard
Patio/Porch Features:
Deck

Neighborhood Info

Nearby Amenities:
Park, Playground, Pool, Shopping Nearby, Sidewalks, Street Lights, Tennis Court(s), Walking/Bike Paths

Condo/Association Info

Condo Type:
Conventional Condo
Condo Amenities:
Parking, Playground
Condo Fee:
$371
Condo Fee Includes:
Common Area Maintenance, Insurance, Maintenance Grounds, Professional Management, Reserve Fund Contributions, Snow Removal, Trash
Pets Allowed:
Yes

Lot / Land Info

Lot Size:
0.06 acres
Lot Features:
Back Yard
Zoning:
R5

Materials & Systems

Roof:
Asphalt Shingle
Exterior:
Mixed
Floors:
Carpet, Linoleum
Foundation:
Poured Concrete
Heating:
Forced Air, Natural Gas
Cooling:
None
Amenities:
Park, Playground, Pool, Shopping Nearby, Sidewalks, Street Lights, Tennis Court(s), Walking/Bike Paths

Listing Info

Possession:
15 Days / Neg
Related Properties
Share This Listing
Ask About This Property
  • This site is protected by reCAPTCHA and the Google Privacy Policy and Terms of Service apply.
Your Agent

Grassroots Realty Group Ltd.
1-833-477-6687

Email