Property Details

Featured in:

Winners:

Featured in:

Winners:

Unit 113, 4712 13 Street NE
Calgary (A2262638)

$13 per sq.ft.
2,706 ft²
Loading Listing...

Loan Term
Interest Rate
Loan Amount
Annual Tax
Ann. Insurance

* Amounts are estimates only. Final payment amounts may vary.

Description

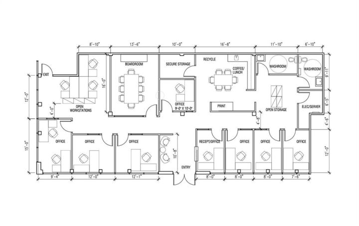
2,750 sq. ft. bright main floor office located near 45 Avenue NE and 13 Street NE. This office space features eight private offices, one boardroom, open-concept areas, a large kitchenette, a server room, and two barrier-free washrooms. The suite offers ample natural light and sensored LED lighting throughout. There are two reserved parking stalls and ample free surface scramble parking. In addition, there is excellent signage opportunity with exposure to McKnight Boulevard NE. Bus transportation is available on 12 Street NE, including routes #12 and #69. The property is close to several restaurants, cafés, and breweries, and just a short drive to Deerfoot City Mall. Conveniently located near 12 Street NE, McKnight Boulevard, and Deerfoot Trail NE. The lease rate is $13.00 per sq. ft. and operating costs are $6.45 per sq. ft. (total of $19.45 per sq. ft.). Utilities are not included in the operating costs. Available immediately.

Property details

Basic Info

MLS® #
A2262638
Property Type:
Commercial
Subtype:
Office
Subdivision:
McCall
Price
$13 per sq.ft.
Sale/Lease:
For Lease
Size:
2,706 sq.ft.
Year Built:
1973 (52 years old)

Building Info

Structure Type:
Industrial
Garage:
No
Fence:
Basement:
No
Inclusions:
N/A

Listing Info

Possession:
Immediate
Related Properties
Share This Listing
Ask About This Property
  • This site is protected by reCAPTCHA and the Google Privacy Policy and Terms of Service apply.
Your Agent

Grassroots Realty Group Ltd.
1-833-477-6687

Email