Property Details

Featured in:

Winners:

Featured in:

Winners:

2405 4 Avenue NW
Calgary (A2264372)

$2,199,000
6
5+1
3,302 ft²
Loading Listing...

Loan Term
Interest Rate
Loan Amount
Annual Tax
Ann. Insurance

* Amounts are estimates only. Final payment amounts may vary.

Description

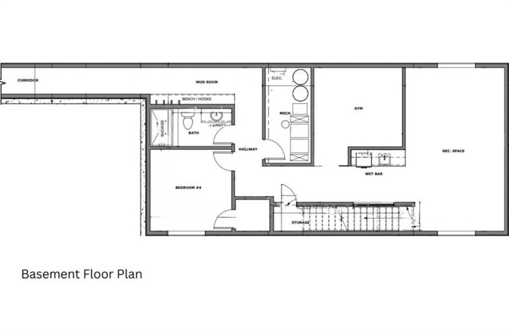
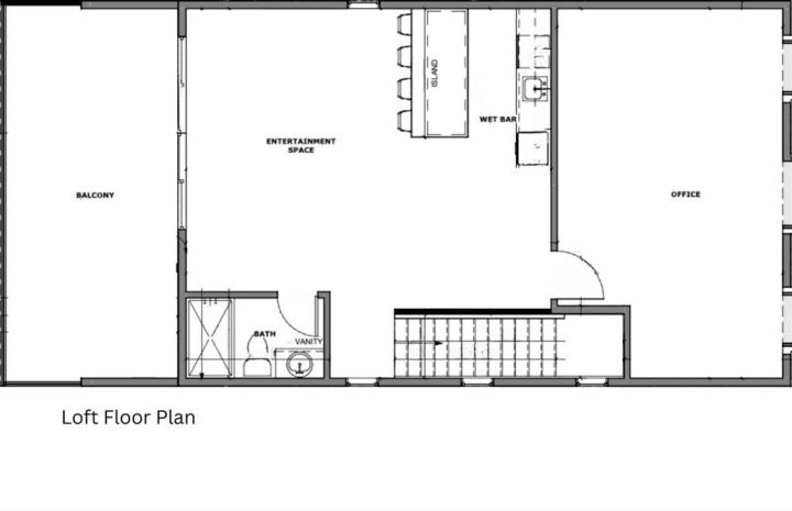
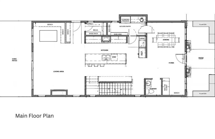
Welcome to luxury living in this stunning detached home offering over 3,000 sqft of thoughtfully designed space. From top to bottom, this residence blends elegance, functionality, and unique features that set it apart. The fully developed basement is an entertainer’s dream, complete with a spacious rec room, wet bar, bedroom, full bathroom, walk-in closet, and a private gym. A one-of-a-kind underground tunnel seamlessly connects the basement to the triple car garage, keeping you sheltered from the elements year-round. On the main floor, a grand foyer welcomes you into an open-concept layout featuring a formal dining room, hidden butler’s pantry, mudroom with a walk-in closet, and a cozy living room with a gas fireplace. A unique booth-style seating area adds charm, while the concrete patio extends the living space outdoors. The second floor is home to a spacious primary suite with a large walk-in closet and spa-like ensuite. Two additional bedrooms, each with their own ensuite, provide comfort and privacy, while the convenient upper-floor laundry completes the level. The third-floor loft elevates the home further, offering a versatile office space, wet bar with an island, entertainment area, bathroom, and a private balcony with beautiful views. A truly exceptional home in an unbeatable location—don’t miss your chance to own this one-of-a-kind masterpiece!

Property details

Basic Info

MLS® #
A2264372
Property Type:
Residential
Subtype:
Detached
Subdivision:
West Hillhurst
Price
$2,199,000
Sale/Lease:
For Sale
Size:
3,302 sq.ft.
Bedrooms:
6
Bathrooms:
5 full / 1 half
Year Built:
2025 (1 years old)

Building Info

New Construction:
Yes
Structure Type:
House
Building Style:
3 (or more) Storey
Garage:
Yes
Parking:
Triple Garage Detached
Fence:
Fenced
Basement:
Finished, Full
Features:
Built-in Features, Double Vanity, High Ceilings, No Animal Home, No Smoking Home, Open Floorplan, Pantry
Fireplaces:
1
Inclusions:
None
Appliances:
Dishwasher, Garage Control(s), Microwave, Oven, Range Hood, Refrigerator, Stove(s)
Laundry:
Upper Level
Exterior Features:
Lighting, Other
Patio/Porch Features:
Patio

Neighborhood Info

Nearby Amenities:
Park, Schools Nearby, Shopping Nearby, Sidewalks, Street Lights, Walking/Bike Paths

Lot / Land Info

Lot Size:
0.10 acres
Lot Features:
Back Lane
Zoning:
DC

Materials & Systems

Roof:
Asphalt Shingle
Exterior:
Wood Frame
Floors:
Carpet, Hardwood, Tile
Foundation:
Poured Concrete
Heating:
Forced Air
Cooling:
None
Amenities:
Park, Schools Nearby, Shopping Nearby, Sidewalks, Street Lights, Walking/Bike Paths

Listing Info

Possession:
60 Days / Neg
Related Properties
Share This Listing
Ask About This Property
  • This site is protected by reCAPTCHA and the Google Privacy Policy and Terms of Service apply.
Your Agent

Grassroots Realty Group Ltd.
1-833-477-6687

Email