Property Details

Featured in:

Winners:

Featured in:

Winners:

10118 106 Avenue
Peace River (A2268050)

$165,000
4
2
1,331 ft²
Note: This property may have a conditional offer. Talk to us for details.
Loading Listing...

Loan Term
Interest Rate
Loan Amount
Annual Tax
Ann. Insurance

* Amounts are estimates only. Final payment amounts may vary.

Description

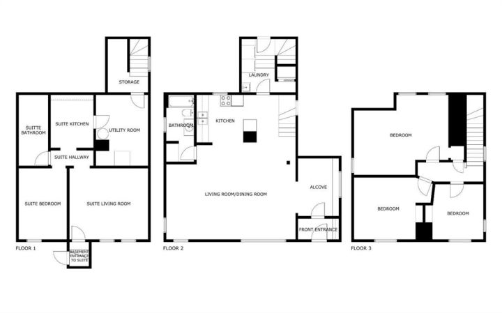
Discover this charming 1950s one and a half story home, nestled on two spacious lots. It features three cozy bedrooms upstairs, a main level bathroom, and an inviting open concept kitchen, living, and dining area filled with character. The partially developed basement would make a great suite or it could be added space for a large family, is nicely laid out with its own kitchen, bedroom, living room, and bathroom, ready for you to complete. There are also two driveways and a separate basement entrance. Additionally there is a versatile garage currently serving as a storage shed or workshop. Schedule a showing to take a look or check out the 360 virtual tour now available in the media section. Floor plans are available in the photos section.

Property details

Basic Info

MLS® #
A2268050
Property Type:
Residential
Subtype:
Detached
Subdivision:
South End
Price
$165,000
Sale/Lease:
For Sale
Size:
1,331 sq.ft.
Bedrooms:
4
Bathrooms:
2
Year Built:
1950 (75 years old)

Building Info

Structure Type:
House
Building Style:
1 and Half Storey
Garage:
No
Parking:
Gravel Driveway, Off Street
Fence:
Partial
Basement:
Full
Features:
Bookcases
Inclusions:
window coverings
Appliances:
Electric Stove, Microwave, Refrigerator, Washer/Dryer
Laundry:
Common Area
Exterior Features:
Other
Patio/Porch Features:
Front Porch, Rear Porch

Neighborhood Info

Nearby Amenities:
Playground

Lot / Land Info

Lot Size:
0.19 acres
Lot Features:
Back Lane, Garden, Lawn
Zoning:
Residential - Medium Dens

Materials & Systems

Roof:
Asphalt Shingle
Exterior:
Vinyl Siding
Floors:
Laminate, Vinyl Plank
Foundation:
Poured Concrete
Heating:
Forced Air, Natural Gas
Cooling:
None
Amenities:
Playground

Listing Info

Possession:
Immediate,Negotiable
Days on Market:
4
Media & Video

Experience this property!

Virtual Tour
Related Properties
Share This Listing
Ask About This Property
  • This site is protected by reCAPTCHA and the Google Privacy Policy and Terms of Service apply.
Your Agent

Grassroots Realty Group Ltd.
1-833-477-6687

Email