Property Details

Featured in:

Winners:

Featured in:

Winners:

218 Vantage Drive
Cochrane (A2268518)

$499,900
3
2+1
1,497 ft²
Loading Listing...

Loan Term
Interest Rate
Loan Amount
Annual Tax
Ann. Insurance

* Amounts are estimates only. Final payment amounts may vary.

Description

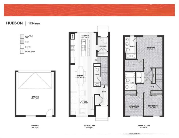
3-Bed, 2.5-Bath Townhome in Hudson, Greystone – 1,434 sq. ft. Welcome to Hudson in ZEN Greystone, a vibrant and walkable community in the heart of Cochrane. This beautifully designed 3-bedroom, 2.5-bath townhome offers 1,434 sq. ft. of modern living with NO CONDO FEES! The open-concept main floor features a spacious kitchen with stainless steel appliances, quartz countertops, and a large island that flows into the dining and living areas — perfect for entertaining or relaxing with family. Upstairs, the primary bedroom includes a walk-in closet and an ensuite with a double vanity, while two additional bedrooms, a full bath, and upper-floor laundry add everyday convenience. Additional highlights include a fenced backyard, rear parking pad, and full-size basement with optional development for added living space or storage. Located close to pathways, parks, tennis courts, Cochrane Pickleball Club, SLS Centre, off-leash dog park, Co-op, Bow RiversEdge Campground, and Downtown Cochrane!

Property details

Basic Info

MLS® #
A2268518
Property Type:
Residential
Subtype:
Row/Townhouse
Subdivision:
Greystone
Price
$499,900
Sale/Lease:
For Sale
Size:
1,497 sq.ft.
Bedrooms:
3
Bathrooms:
2 full / 1 half
Year Built:
2025 (0 years old)

Building Info

New Construction:
Yes
Structure Type:
Five Plus
Building Style:
2 Storey
Garage:
No
Parking:
Parking Pad
Basement:
Full
Features:
Double Vanity, Kitchen Island, Low Flow Plumbing Fixtures, No Animal Home, Open Floorplan, Separate Entrance, Stone Counters, Walk-In Closet(s)
Inclusions:
N/A
Appliances:
Dishwasher, Dryer, Electric Range, Microwave Hood Fan, Refrigerator, Washer
Laundry:
Upper Level
Exterior Features:
Lighting, Private Entrance
Patio/Porch Features:
None

Neighborhood Info

Nearby Amenities:
Playground, Schools Nearby, Shopping Nearby, Sidewalks, Street Lights

Lot / Land Info

Lot Size:
0.05 acres
Lot Features:
Back Lane, Back Yard, Landscaped
Zoning:
R-MD

Materials & Systems

Roof:
Asphalt Shingle
Exterior:
Wood Frame,Wood Siding
Floors:
Carpet, Vinyl Plank
Foundation:
Poured Concrete
Heating:
Forced Air, Natural Gas
Cooling:
None
Amenities:
Playground, Schools Nearby, Shopping Nearby, Sidewalks, Street Lights

Listing Info

Possession:
By Date Specified
Media & Video

Experience this property!

More Images Listing Website
Related Properties
Share This Listing
Ask About This Property
  • This site is protected by reCAPTCHA and the Google Privacy Policy and Terms of Service apply.
Your Agent

Grassroots Realty Group Ltd.
1-833-477-6687

Email