Property Details

Featured in:

Winners:

Featured in:

Winners:

99 Covewood Park NE
Calgary (A2270162)

$629,000
2
2+1
1,444 ft²
Loading Listing...

Loan Term
Interest Rate
Loan Amount
Annual Tax
Ann. Insurance

* Amounts are estimates only. Final payment amounts may vary.

Description

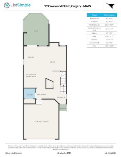
Stunning renovated home on a quiet street in Coventry Hills. This beautifully updated home is a true must-see, offering style, comfort, and attention to detail throughout. The main floor impresses with numerous features including; in flooring heating, a spacious living room with a gas fireplace and pot lighting, and a chef's kitchen featuring custom cabinetry, granite countertops, a farmhouse sink, high-end appliances, and elegant light fixtures. A stylish powder room completes the main level. Upstairs, the large primary suite includes a spa-like ensuite with a luxurious tiled shower featuring multiple nozzles and premium vanities. One of the original bedrooms has been transformed into an expansive walk-in closet, perfectly organized for all your wardrobe and footwear needs—but it can easily be converted back to a bedroom if desired. The additional bedroom is bright with corner windows, and a full four-piece bathroom completes the upper level. The fully finished basement features slate flooring with in-floor heating, a spacious recreation area, wet bar, built-in work space and a generous laundry room with plenty of space for future development. The full-sized double attached garage comes equipped with a built-in heater—perfect for winter months. Step outside to your private backyard oasis, complete with a covered awning, extended deck area, beautifully landscaped yard, five-zone in-ground sprinkler system, and a charming storage shed. Additional comforts include central air conditioning. The outside maintenance of this home has all been done for you including new siding, roof, soffit, facia and eaves! This exceptional home combines modern upgrades with thoughtful design—truly a must-see in Coventry Hills!

Property details

Basic Info

MLS® #
A2270162
Property Type:
Residential
Subtype:
Detached
Subdivision:
Coventry Hills
Price
$629,000
Sale/Lease:
For Sale
Size:
1,444 sq.ft.
Bedrooms:
2
Bathrooms:
2 full / 1 half
Year Built:
1998 (27 years old)

Building Info

Structure Type:
House
Building Style:
2 Storey
Garage:
Yes
Parking:
Double Garage Attached
Fence:
Fenced
Basement:
Full
Features:
Built-in Features, Closet Organizers, Granite Counters, See Remarks, Wet Bar
Fireplaces:
1
Inclusions:
Sprinkler System, garage heater
Appliances:
Dryer, Microwave, Refrigerator, Stove(s), Washer, Window Coverings
Laundry:
In Basement
Exterior Features:
Awning(s)
Patio/Porch Features:
Deck, Patio, See Remarks

Neighborhood Info

Nearby Amenities:
Park, Playground, Schools Nearby, Shopping Nearby, Sidewalks, Street Lights, Walking/Bike Paths

Lot / Land Info

Lot Size:
0.08 acres
Lot Features:
Lawn, Level, See Remarks, Underground Sprinklers
Zoning:
R-G

Materials & Systems

Roof:
Asphalt Shingle
Exterior:
Vinyl Siding,Wood Frame
Floors:
Carpet, Ceramic Tile, Slate
Foundation:
Poured Concrete
Heating:
Forced Air
Cooling:
Central Air
Amenities:
Park, Playground, Schools Nearby, Shopping Nearby, Sidewalks, Street Lights, Walking/Bike Paths

Listing Info

Possession:
60 Days / Neg
Related Properties
Share This Listing
Ask About This Property
  • This site is protected by reCAPTCHA and the Google Privacy Policy and Terms of Service apply.
Your Agent

Grassroots Realty Group Ltd.
1-833-477-6687

Email