Property Details

Featured in:

Winners:

Featured in:

Winners:

49 Annette Landing NW
Calgary (A2270399)

$589,900
3
2+1
1,824 ft²
Loading Listing...

Loan Term
Interest Rate
Loan Amount
Annual Tax
Ann. Insurance

* Amounts are estimates only. Final payment amounts may vary.

Description

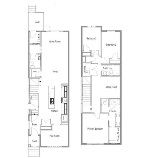
Welcome to Glacier Ridge where elevated design meets everyday comfort in this brand-new Cedarglen Homes semi-detached residence. This home is crafted for the rhythm of modern living - open, inviting, and effortlessly functional. Step inside and feel the flow immediately - a bright front foyer ushers you toward a sunlit flex room, ready to adapt to your lifestyle. Imagine a quiet home office for focused mornings or a cozy reading nook that soaks in the afternoon light. Beyond, the heart of the home unfolds - a stunning open-concept kitchen with a generous island, sleek quartz countertops, and rich walnut-style cabinetry that anchors the space in warmth and sophistication. Matte black finishes add a contemporary edge, while the seamless connection between kitchen, dining nook, and great room makes entertaining a joy. Whether it’s a lively dinner with friends or a relaxed Sunday breakfast, this is where moments naturally gather. Off the great room, the mudroom offers both practicality and charm - with a convenient half bath and access to the rear deck, perfect for summer BBQs or evening unwinds. Beyond the deck, you’ll find a parking pad ready for your future garage - and a side entrance to the unfinished basement, a rare opportunity to customize or add a secondary suite down the line (subject to city approval and permitting). Upstairs, the thoughtful design continues. A central bonus room offers a casual retreat - movie nights, game days, or a play space that keeps the energy upstairs. The primary suite sits privately at the back, complete with a walk-in closet and a serene 4-piece ensuite where you can recharge in peace. Two additional bedrooms share a stylish full bath, while the conveniently placed laundry room keeps chores close at hand. Every detail here feels intuitive - designed to simplify daily life without sacrificing beauty. And the finishing touches? Luxury vinyl plank flooring on the main, quartz countertops throughout, LVT in baths and laundry, and a $4,096 appliance allowance for your fridge and stove selection - ensuring the final look reflects your style. The microwave, range hood, and dishwasher are already chosen for you, and you’ll receive a $1,000 landscaping rebate when you complete your outdoor oasis within a year of possession. This is more than a new home - it’s a fresh start in one of Calgary’s most exciting new communities. Glacier Ridge offers the perfect blend of modern architecture, community connection, and natural beauty - all waiting to be experienced. Make it yours and start building your next chapter in Glacier Ridge today. *Some photos are virtually staged.*

Property details

Basic Info

MLS® #
A2270399
Property Type:
Residential
Subtype:
Semi Detached (Half Duplex)
Subdivision:
Glacier Ridge
Price
$589,900
Sale/Lease:
For Sale
Size:
1,824 sq.ft.
Bedrooms:
3
Bathrooms:
2 full / 1 half
Year Built:
2025 (0 years old)

Building Info

New Construction:
Yes
Structure Type:
Duplex
Building Style:
2 Storey, Attached-Side by Side
Garage:
No
Parking:
Alley Access, Off Street, Parking Pad
Basement:
Full
Features:
Bathroom Rough-in, Double Vanity, Kitchen Island, No Animal Home, No Smoking Home, Open Floorplan, Pantry, Quartz Counters, Separate Entrance, Walk-In Closet(s)
Inclusions:
Appliance allowance of $4096.00 for fridge and stove selection at the builder's supplier.
Appliances:
Dishwasher, Microwave, Range Hood, See Remarks
Laundry:
Upper Level
Exterior Features:
BBQ gas line
Patio/Porch Features:
Deck

Neighborhood Info

Nearby Amenities:
Clubhouse, Park, Playground, Schools Nearby, Sidewalks, Street Lights, Tennis Court(s), Walking/Bike Paths

Condo/Association Info

Condo Amenities:
Park
Condo Fee 2:
$465

Lot / Land Info

Lot Size:
0.06 acres
Lot Features:
Back Lane, Back Yard, Rectangular Lot
Zoning:
R-G

Materials & Systems

Roof:
Asphalt Shingle
Exterior:
Vinyl Siding
Floors:
Carpet, Tile, Vinyl Plank
Foundation:
Poured Concrete
Heating:
High Efficiency
Cooling:
None
Amenities:
Clubhouse, Park, Playground, Schools Nearby, Sidewalks, Street Lights, Tennis Court(s), Walking/Bike Paths

Listing Info

Possession:
Immediate,Negotiable
Related Properties
Share This Listing
Ask About This Property
  • This site is protected by reCAPTCHA and the Google Privacy Policy and Terms of Service apply.
Your Agent

Grassroots Realty Group Ltd.
1-833-477-6687

Email