Property Details

Featured in:

Winners:

Featured in:

Winners:

40 Corner Glen Green NE
Calgary (A2275392)

$734,900
4
3
2,343 ft²
Loading Listing...

Loan Term
Interest Rate
Loan Amount
Annual Tax
Ann. Insurance

* Amounts are estimates only. Final payment amounts may vary.

Description

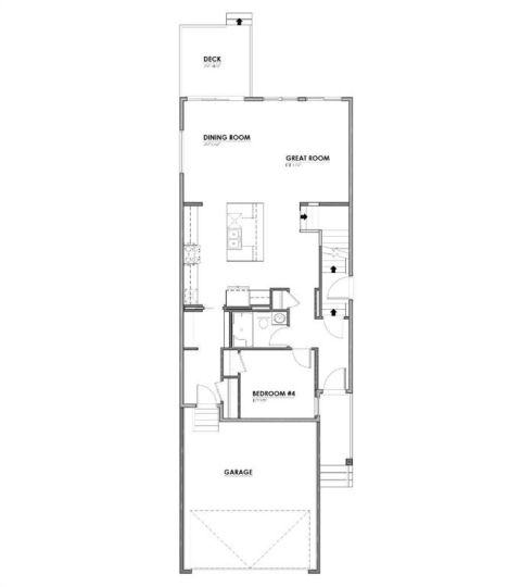
*BRAND NEW HOME*KARMA 24*QUICK POSSESSION*10 SOLAR PANELS*MAIN FLOOR BEDROOM SUITE* Amazing Design! Unique in Features! Over 2342+ SF of Stylish design welcomes you into this stunning four-bedroom and 3 BATH home located in the beautiful community of Cornerstone. You're welcome to a thoughtfully designed living space that maximizes every inch while offering an abundance of space for your whole family to enjoy! The Gorgeous OPEN FLOOR PLAN invites you in to discover a lovely kitchen that boasts beautiful QUARTZ countertops, sleek stainless steel Whirlpool appliance package with an upgraded gas slide stove, French Door fridge w/ Internal Water/Ice, Microwave and a Broan power pack built-in cabinet hood fan. A large walk-through pantry and beautiful extended oversized flush centre Island that overlooks the generous great room and dining room-Ideal for all entertaining. A sizeable 4TH BEDROOM on the main floor, perfect for a large family or working from home as you have a full bath adjacent to the functional space. Upstairs, you will discover THREE MORE BEDROOMS with a Primary Bedroom boasting a 5pc en suite with dual vanities, a stand-alone shower, an oversized bath and a large walk-in closet. A centralized BONUS ROOM offers an additional living space and a full bath, plus 2nd-floor laundry with a window, completing the level. ADDITIONAL FEATURES: Fit and Finish SELECT, professionally designed Oak and Ore Colour Palette, rear patio door with wood deck, raised 9' basement ceiling height, and 3-piece rough-in plumbing. Situated close to the International Airport with quick access to both Deer Foot Trail and Stoney Trail, along with new amenities being added to the community continuously, you will enjoy all Cornerstone has to offer. A brand new build with all of the difficult decisions decided along with a functional and intelligent floor plan for a large family. Perfect!!

Property details

Basic Info

MLS® #
A2275392
Property Type:
Residential
Subtype:
Detached
Subdivision:
Cornerstone
Price
$734,900
Sale/Lease:
For Sale
Size:
2,343 sq.ft.
Bedrooms:
4
Bathrooms:
3
Year Built:
2025 (0 years old)

Building Info

New Construction:
Yes
Builder:
Jayman BUILT
Structure Type:
House
Building Style:
2 Storey
Garage:
Yes
Parking:
Double Garage Attached, Enclosed, Garage Faces Front
Basement:
Full
Features:
Double Vanity, High Ceilings, Kitchen Island, Low Flow Plumbing Fixtures, No Animal Home, No Smoking Home, Open Floorplan, Quartz Counters, Smart Home, Tankless Hot Water, Walk-In Closet(s)
Inclusions:
10 Solar Panels
Appliances:
Dishwasher, Garage Control(s), Gas Stove, Microwave, Range Hood, Refrigerator
Laundry:
Laundry Room, Upper Level
Exterior Features:
None
Patio/Porch Features:
Deck

Neighborhood Info

Nearby Amenities:
Park, Playground, Schools Nearby, Shopping Nearby, Sidewalks, Street Lights

Condo/Association Info

Condo Amenities:
Park, Playground
Condo Fee 2:
$150

Lot / Land Info

Lot Size:
0.08 acres
Lot Features:
Irregular Lot
Water:
Public
Zoning:
R-G

Materials & Systems

Roof:
Asphalt Shingle
Exterior:
Stone,Vinyl Siding,Wood Frame
Floors:
Carpet, Vinyl Plank
Foundation:
Poured Concrete
Heating:
Forced Air, Natural Gas
Cooling:
None
Amenities:
Park, Playground, Schools Nearby, Shopping Nearby, Sidewalks, Street Lights

Listing Info

Possession:
Immediate
Days on Market:
5
Media & Video

Experience this property!

More Images Listing Website
Related Properties
Share This Listing
Ask About This Property
  • This site is protected by reCAPTCHA and the Google Privacy Policy and Terms of Service apply.
Your Agent

Grassroots Realty Group Ltd.
1-833-477-6687

Email