Property Details

Featured in:

Winners:

Featured in:

Winners:

111, 8716 108 Street
Grande Prairie (A2279138)

$579,900
3,565 ft²
Loading Listing...

Loan Term
Interest Rate
Loan Amount
Annual Tax
Ann. Insurance

* Amounts are estimates only. Final payment amounts may vary.

Description

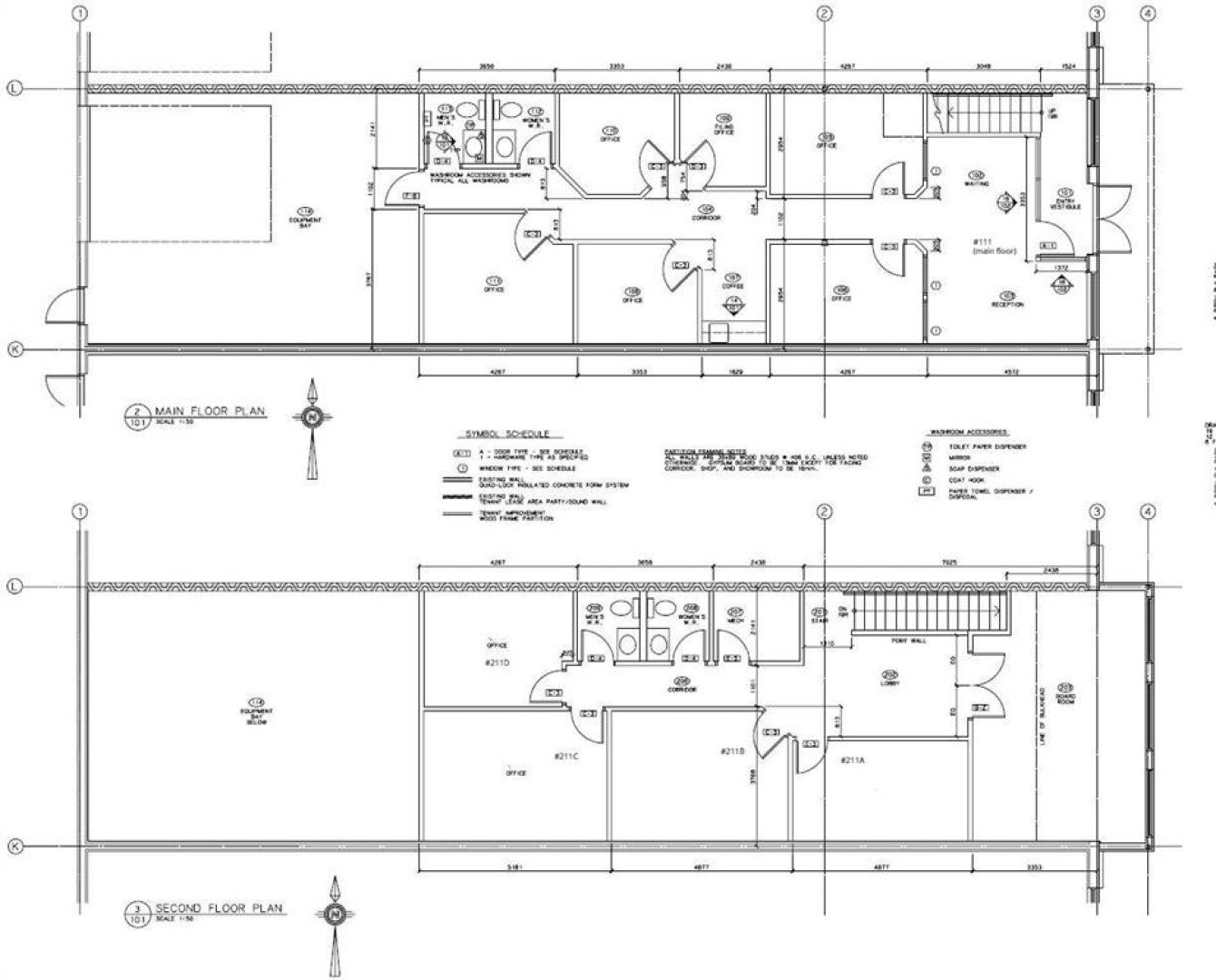
Office Condo Bay with great exposure. Features two floors of premium office space with a small rear shop. Main floor office area is 1380 sqft with reception, 5 offices, two bathrooms, small kitchen and storage room. Front vestibule allows separate access upstairs to 1495 sqft of 4 offices, a large bright board room and bathroom. Also, there is a 690 sqft shop area in the rear with an over head door and small mezzanine. Currently there are tenants in two offices upstairs that have access to the board room for $775 per month gross each with two more vacant ones that could be rented, and the back shop area is rented for $1300 gross per month. All 3 current tenants would like to stay if possible. This is a great opportunity to run your office out of the main floor and have your mortgage mostly covered by the other tenants in the building and also allow you the flexibility to grow in the future. The main floor office space would be available upon possession. Building offers flexible options for keeping as an income property, partial income and owner use, or complete owner occupation. Lots of possibilities.

Property details

Basic Info

MLS® #
A2279138
Property Type:
Commercial
Subtype:
Office
Subdivision:
Richmond Industrial Park
Price
$579,900
Sale/Lease:
For Sale
Size:
3,565 sq.ft.
Year Built:
2006 (20 years old)

Building Info

Structure Type:
Office
Garage:
No
Fence:
Basement:
No
Inclusions:
Fridge (Board Room Furniture Negotiable)

Condo/Association Info

Condo Type:
Conventional Condo
Condo Fee:
$474

Lot / Land Info

Water:
Public
Sewer:
Public Sewer
Utilities:
Electricity Connected, Natural Gas Connected, Sewer Connected, Water Connected
Zoning:
IB

Materials & Systems

Foundation:
Poured Concrete
Heating:
Forced Air, Natural Gas
Cooling:
Central Air

Listing Info

Possession:
Negotiable
Related Properties
Share This Listing
Ask About This Property
  • This site is protected by reCAPTCHA and the Google Privacy Policy and Terms of Service apply.
Your Agent

Grassroots Realty Group Ltd.
1-833-477-6687

Email