Property Details

Featured in:

Winners:

Featured in:

Winners:

404 Lakewood Drive
Strathmore (A2282540)

$825,000
4
3
2,462 ft²
Loading Listing...

Loan Term
Interest Rate
Loan Amount
Annual Tax
Ann. Insurance

* Amounts are estimates only. Final payment amounts may vary.

Description

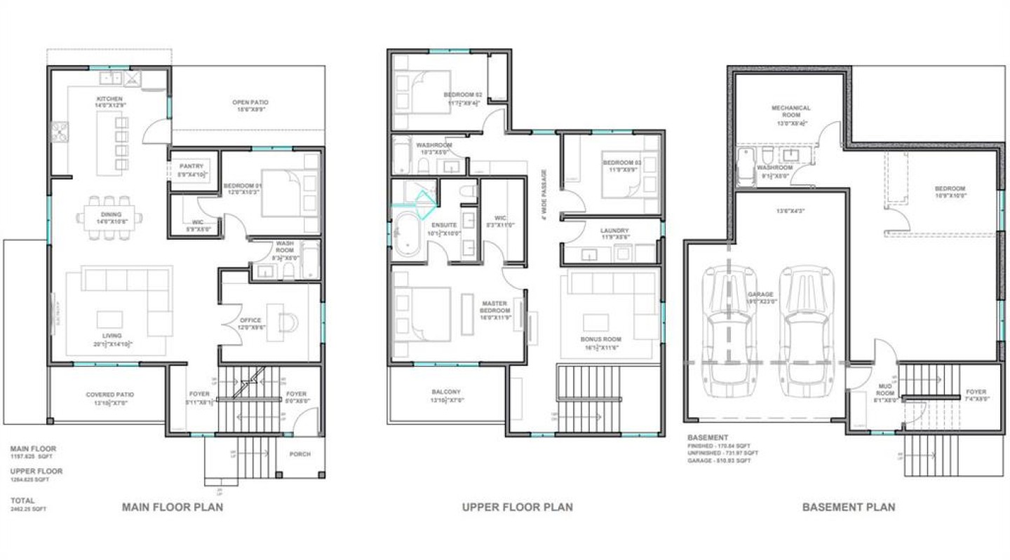
Welcome to 404 Lakewood Drive, a future build by Dhaduk Homes backing onto the canal in Lakewood. This 2,462 sq ft reverse walkout is thoughtfully designed for growing families who value light, views, and flexibility. Step into a bright main floor where expansive windows frame the living room and fireplace. A spacious office, full bath, and bedroom with walk in closet offer versatility for guests or multi generational living. The open dining area flows into a beautifully designed kitchen with a large island and access to the east facing patio overlooking the water. Upstairs, a west facing bonus room and primary bedroom captures stunning views over the ponds and lake, extending to the Rocky Mountains and beyond. The primary retreat features its own private balcony, walk in closet, and elegant five piece ensuite. Two additional bedrooms, a full bath, and a large laundry room with sink complete the upper level. The reverse walkout basement includes a 19 x 23 garage, finished mudroom, mechanical room, and future development space with two large windows. Whether for additional family living or a home based business, this layout grows with you. A rare opportunity to build backing onto the canal with elevated craftsmanship, intentional design, and breathtaking water and mountain views.

Property details

Basic Info

MLS® #
A2282540
Property Type:
Residential
Subtype:
Detached
Subdivision:
Lakewood
Price
$825,000
Sale/Lease:
For Sale
Size:
2,462 sq.ft.
Bedrooms:
4
Bathrooms:
3
Year Built:
2026 (0 years old)

Building Info

New Construction:
Yes
Builder:
Dhaduk Homes
Structure Type:
House
Building Style:
2 Storey
Garage:
Yes
Parking:
Concrete Driveway, Double Garage Attached
Basement:
Full
Features:
Kitchen Island, Pantry
Inclusions:
N/A
Appliances:
Dishwasher, Electric Stove, Microwave Hood Fan, Refrigerator, Washer/Dryer
Laundry:
Upper Level
Exterior Features:
Private Yard
Patio/Porch Features:
Patio

Neighborhood Info

Nearby Amenities:
Lake, Park, Playground, Schools Nearby, Shopping Nearby, Sidewalks, Street Lights, Tennis Court(s), Walking/Bike Paths

Lot / Land Info

Lot Size:
0.15 acres
Lot Features:
Back Yard, Rectangular Lot, Street Lighting, Views
Zoning:
R1N

Materials & Systems

Roof:
Asphalt Shingle
Exterior:
Cement Fiber Board,Concrete,Stone,Wood Frame
Floors:
Vinyl Plank
Foundation:
Poured Concrete
Heating:
Forced Air, Natural Gas
Cooling:
None
Amenities:
Lake, Park, Playground, Schools Nearby, Shopping Nearby, Sidewalks, Street Lights, Tennis Court(s), Walking/Bike Paths

Listing Info

Possession:
Negotiable,Upon Completion
Related Properties
Share This Listing
Ask About This Property
  • This site is protected by reCAPTCHA and the Google Privacy Policy and Terms of Service apply.
Your Agent

Grassroots Realty Group Ltd.
1-833-477-6687

Email