Property Details

Featured in:

Winners:

Featured in:

Winners:

62083 Township 710 Other
Rural Grande Prairie No. 1, County of (A2282668)

$1,800,000
Loading Listing...

Loan Term
Interest Rate
Loan Amount
Annual Tax
Ann. Insurance

* Amounts are estimates only. Final payment amounts may vary.

Description

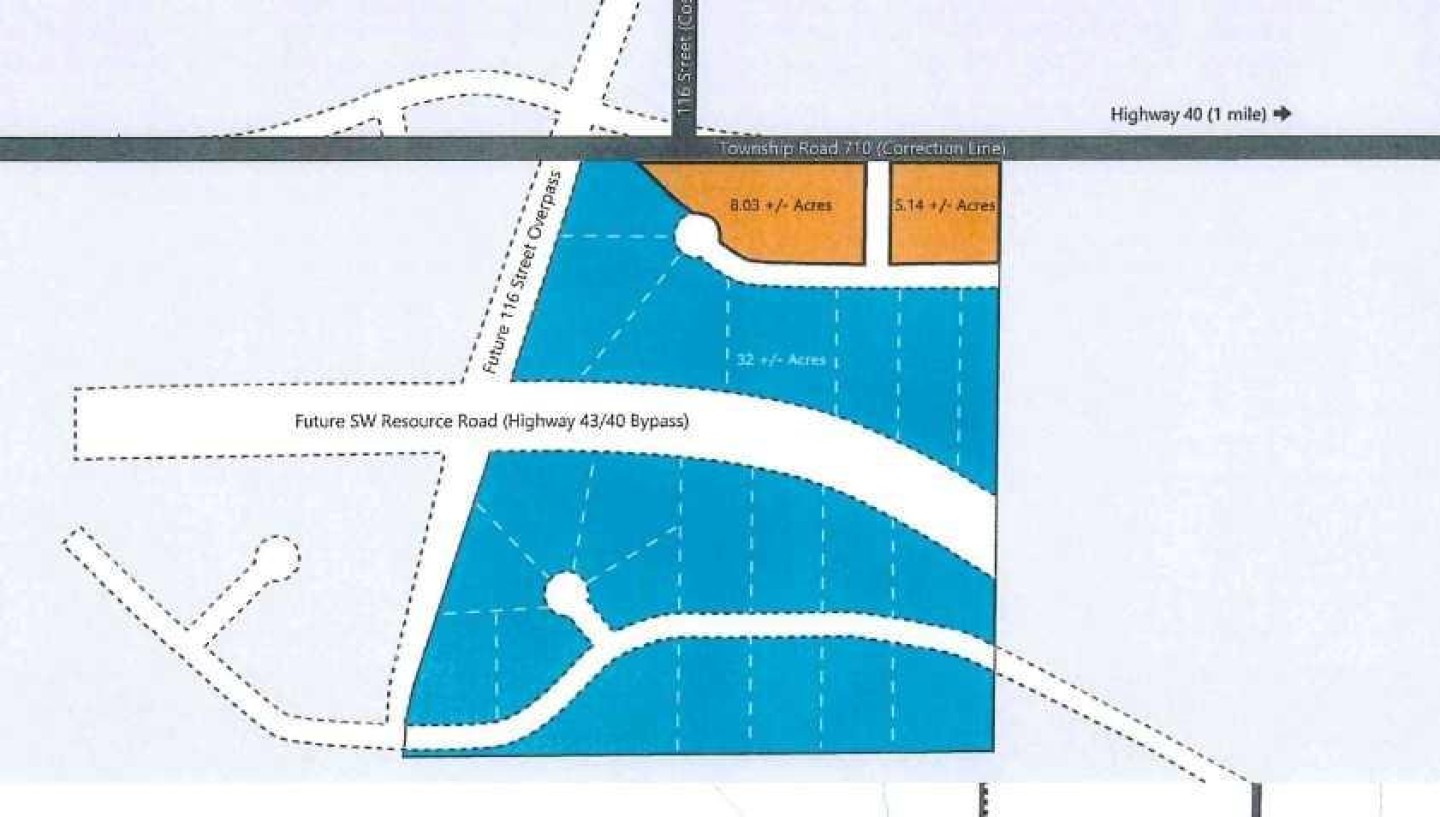
Correction Line West Industrial. Just south of Grande Prairie with convenient access to Highway 40, Correction Line, 116 st and future southwest bypass. This RM-1 Industrial land is some of the only available Industrial land on south side of town. Subdivision is now approved for 5 and 8 acre lots and flexibility available for larger parcels if desired. Lots will include: paved roads, power, gas, Aquatera water and County taxes. Great visibility from Correction Line, 116 St and future South West Bypass. Contact your realtor for more details or information package.Vendor is a licensed REALTOR® in the Province of Alberta

Property details

Basic Info

MLS® #
A2282668
Property Type:
Land
Subtype:
Industrial Land
Subdivision:
NONE
Price
$1,800,000
Sale/Lease:
For Sale

Building Info

Garage:
No
Basement:
No
Inclusions:
N/A

Acreage/Farm Info

Nearest Town:
Grande Prairie

Lot / Land Info

Lot Size:
8.00 acres
Legal Land Desc:
33-70-6-W6
Water:
None
Zoning:
RM-1

Listing Info

Possession:
Negotiable
Related Properties
Share This Listing
Ask About This Property
  • This site is protected by reCAPTCHA and the Google Privacy Policy and Terms of Service apply.
Your Agent

Grassroots Realty Group Ltd.
1-833-477-6687

Email