Property Details

Featured in:

Winners:

Featured in:

Winners:

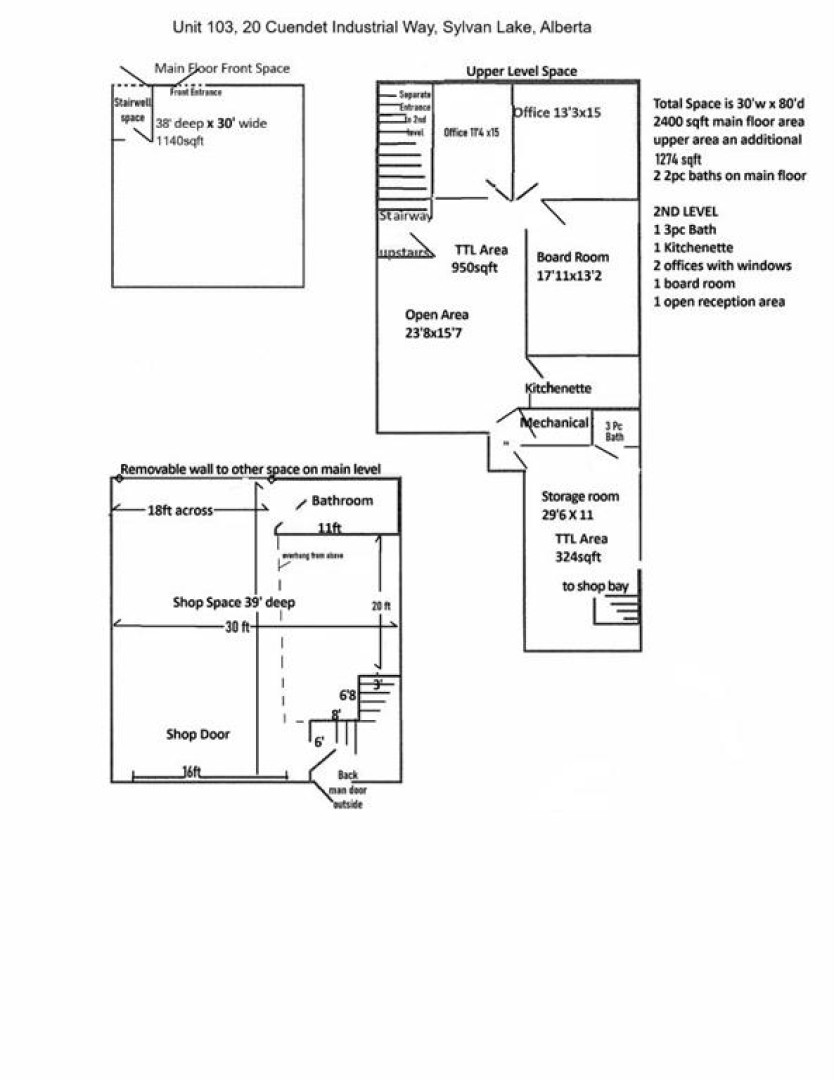
103, 20 Cuendet Industrial Way
Sylvan Lake (A2284370)

$399,900
3,674 ft²
Loading Listing...

Loan Term
Interest Rate
Loan Amount
Annual Tax
Ann. Insurance

* Amounts are estimates only. Final payment amounts may vary.

Description

LOCATION, LAYOUT & FLEXIBILITY. Situated just east of Highway 20 in Sylvan Lake’s fast-growing Beju Industrial Area, this well-designed professional industrial bay presents an excellent opportunity for both owner-users and investors. The 30’ × 80’ unit features fully engineered second-floor office space with a separate exterior entrance, complete with two private offices, a boardroom, open reception area, lunchroom, storage room, and a 3-piece bathroom. The main level offers a functional split layout with a 30’ × 38’ front workspace and a rear 30’ × 39’ shop area equipped with a 16’ overhead door. Two 2-piece bathrooms and a work area, full rear access to the upper level adds operational flexibility. A gated rear yard provides secure outdoor storage or additional parking, making this an adaptable space for a wide range of business uses. Photos are prior to current tenant. Tenant would stay, is month to month.

Property details

Basic Info

MLS® #
A2284370
Property Type:
Commercial
Subtype:
Industrial
Subdivision:
Beju Industrial Park
Price
$399,900
Sale/Lease:
For Sale
Size:
3,674 sq.ft.
Year Built:
2012 (14 years old)

Building Info

Structure Type:
Industrial
Garage:
No
Fence:
Basement:
No
Inclusions:
Overhead Door Opener

Condo/Association Info

Condo Type:
Bare Land Condo
Condo Fee:
$460
Condo Fee Includes:
Insurance, Reserve Fund Contributions, Snow Removal

Lot / Land Info

Zoning:
I1

Materials & Systems

Heating:
Ceiling, Forced Air

Listing Info

Possession:
30 Days / Neg
Days on Market:
31
Related Properties
Share This Listing
Ask About This Property
  • This site is protected by reCAPTCHA and the Google Privacy Policy and Terms of Service apply.
Your Agent

Grassroots Realty Group Ltd.
1-833-477-6687

Email