Property Details

Featured in:

Winners:

Featured in:

Winners:

64 Rockyvale Drive NW
Calgary (A2285877)

$599,999
Loading Listing...

Loan Term
Interest Rate
Loan Amount
Annual Tax
Ann. Insurance

* Amounts are estimates only. Final payment amounts may vary.

Description

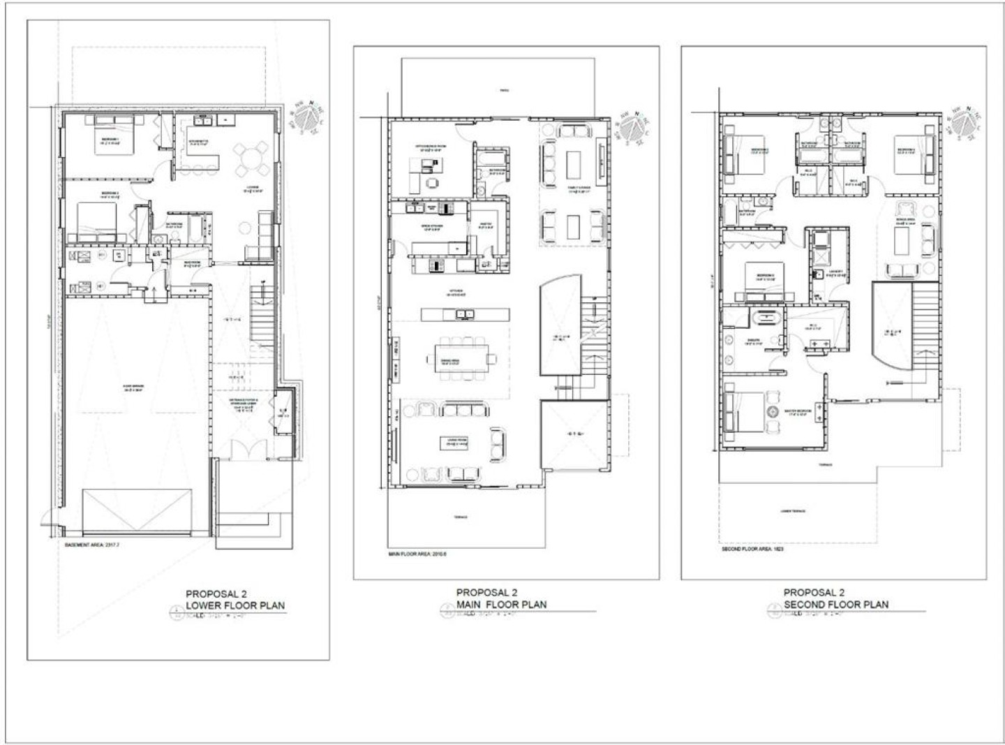
No Building commitment, Bring your own builder 3 lots available, lot 17, 18 & 12. ( Lot 12 is walkout) Build your dream custom home 3000-5000 sq/ft on an expansive 7,427 sq ft (63.5 ft Front, 138 & 171 ft sides, and 43 ft back ) Estate lot in sought-after Rocky Ridge, NW Calgary, perfectly positioned across from a tranquil pond and backing onto green space and trees. This rare homesite offers true four-season serenity, with no neighbours behind, direct access to pathways, and sweeping Rocky Mountain views that frame your backyard and fill your main living spaces with natural beauty. Set high on Calgary’s northwest ridge, your custom design can take full advantage of the rolling landscape—imagine a sun-filled great room with wall-to-wall windows, a gourmet kitchen and covered deck overlooking the treetops. Morning walks around the wetland ponds, evenings watching the sunset over the Rockies, and easy access to Rocky Ridge’s extensive pathways, parks, and Ranch Centre amenities create an unparalleled lifestyle that feels like a retreat while still being minutes from major routes, C-Train access, and northwest shopping and services.

Property details

Basic Info

MLS® #
A2285877
Property Type:
Land
Subtype:
Residential Land
Subdivision:
Rocky Ridge
Price
$599,999
Sale/Lease:
For Sale

Building Info

Garage:
No
Basement:
No
Inclusions:
n/a

Neighborhood Info

Nearby Amenities:
Park, Pond, Schools Nearby, Shopping Nearby, Sidewalks, Street Lights, Walking/Bike Paths

Lot / Land Info

Lot Size:
0.17 acres
Zoning:
R-CG

Materials & Systems

Amenities:
Park, Pond, Schools Nearby, Shopping Nearby, Sidewalks, Street Lights, Walking/Bike Paths

Listing Info

Possession:
30 Days / Neg
Days on Market:
56
Related Properties
Share This Listing
Ask About This Property
  • This site is protected by reCAPTCHA and the Google Privacy Policy and Terms of Service apply.
Your Agent

Grassroots Realty Group Ltd.
1-833-477-6687

Email