Property Details

Featured in:

Winners:

Featured in:

Winners:

2916 17 Street SE
Calgary (A2290249)

$499,000
1
1
1,217 ft²
Loading Listing...

Loan Term
Interest Rate
Loan Amount
Annual Tax
Ann. Insurance

* Amounts are estimates only. Final payment amounts may vary.

Description

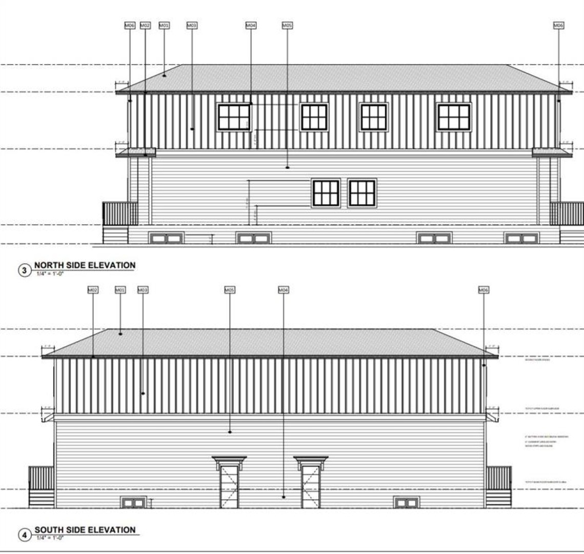
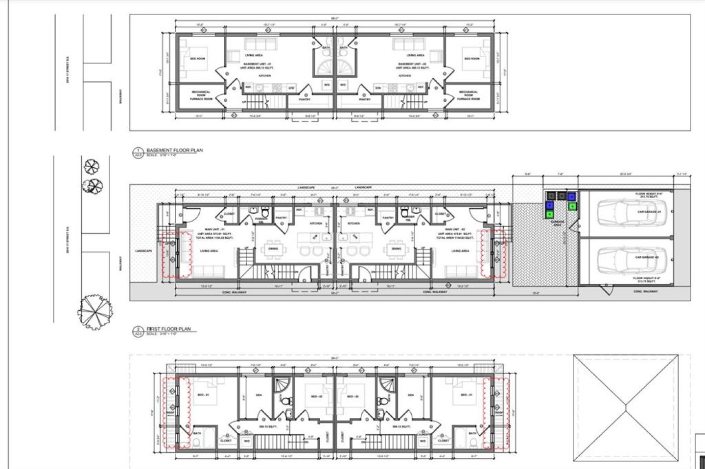
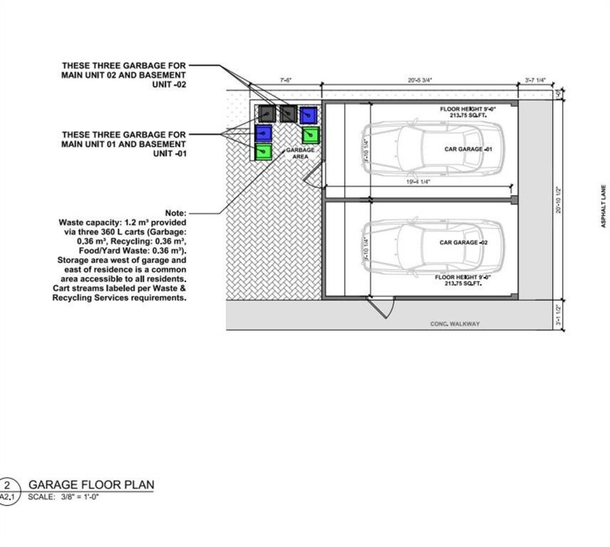
Attention Builders, Developers & Investors! Exceptional DP APPROVED for 4 UNITS, infill opportunity in Inglewood, one of Calgary’s most iconic and in-demand inner-city communities. Approved for a back-to-back duplex with two legal basement suites (4 units total), this project is truly shovel-ready. Utilities have been disconnected, the demolition permit is approved, and the interior of the existing home has already been stripped down to the studs — no asbestos remediation required. Build immediately and capitalize this season. Situated just 8 minutes from downtown, Inglewood is renowned for its vibrant character, strong rental demand, and long-term appreciation. The neighborhood offers an unbeatable lifestyle with river pathways, parks, schools, breweries, boutiques, music venues, and some of Calgary’s top restaurants, all within walking distance. Easy access to transit and major roadways further enhances appeal for both end-users and tenants. This is a rare opportunity to develop in a high-barrier, mature inner-city location where new inventory is limited. Ideal for strong resale value, long-term rental hold, or investor exit, in a community that consistently outperforms. Don’t miss your chance to build in one of Calgary’s most established and sought-after neighborhoods.

Property details

Basic Info

MLS® #
A2290249
Property Type:
Residential
Subtype:
Detached
Subdivision:
Inglewood
Price
$499,000
Sale/Lease:
For Sale
Size:
1,217 sq.ft.
Bedrooms:
1
Bathrooms:
1
Year Built:
1913 (113 years old)

Building Info

Structure Type:
House
Building Style:
1 and Half Storey
Garage:
Yes
Parking:
Single Garage Detached
Fence:
Partial
Basement:
Full
Features:
See Remarks
Inclusions:
none
Appliances:
None
Laundry:
None
Exterior Features:
Garden
Patio/Porch Features:
None

Neighborhood Info

Nearby Amenities:
Schools Nearby, Shopping Nearby, Sidewalks

Lot / Land Info

Lot Size:
0.07 acres
Lot Features:
City Lot
Zoning:
R-CG

Materials & Systems

Roof:
Asphalt Shingle
Exterior:
Mixed
Floors:
Other
Foundation:
Poured Concrete
Heating:
None
Cooling:
None
Amenities:
Schools Nearby, Shopping Nearby, Sidewalks

Listing Info

Possession:
Negotiable
Related Properties
Share This Listing
Ask About This Property
  • This site is protected by reCAPTCHA and the Google Privacy Policy and Terms of Service apply.
Your Agent

Grassroots Realty Group Ltd.
1-833-477-6687

Email