Property Details

Featured in:

Winners:

Featured in:

Winners:

5901 50 Avenue
Innisfail (A2291188)

$3,856,000
Loading Listing...

Loan Term
Interest Rate
Loan Amount
Annual Tax
Ann. Insurance

* Amounts are estimates only. Final payment amounts may vary.

Description

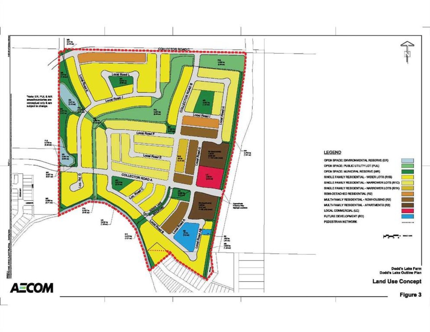
ATTENTION DEVELOPERS & INVESTORS!! 136 Acres of PRIME Residential Mixed Development land with 1785 feet of Dodd's Lake Shoreline in the Heart of Innisfail Alberta. This unique property is an Excellent investment and Development opportunity. An Extensive study with outline plan is in place with the current local ASP & Geo Technical Report. There are approximately 310 single detached dwellings, 65 semi-detached dwellings, 104 row housing units and 257 apartment units with a small neighborhood commercial parcel included in the plan. The properties wetlands and creek only add to the charm that this neighborhood will be developed into with the town fully supportive to any new developers plans for build out. Don't miss this rare opportunity! "Visit REALTOR® website for additional information"

Property details

Basic Info

MLS® #
A2291188
Property Type:
Land
Subtype:
Residential Land
Subdivision:
Dodds Lake
Price
$3,856,000
Sale/Lease:
For Sale

Building Info

Garage:
No
Fence:
Fenced
Basement:
No
Inclusions:
N/A
Outbuilding Notes:
Farm House, Garage & Sheds

Neighborhood Info

Nearby Amenities:
Golf, Lake, Park

Acreage/Farm Info

Nearest Town:
Innisfail

Lot / Land Info

Lot Size:
135.88 acres
Legal Land Desc:
28-35-28-W4
Zoning:
RD

Materials & Systems

Amenities:
Golf, Lake, Park

Listing Info

Possession:
15 Days / Neg
Days on Market:
4
Media & Video

Experience this property!

Virtual Tour
Related Properties
Share This Listing
Ask About This Property
  • This site is protected by reCAPTCHA and the Google Privacy Policy and Terms of Service apply.
Your Agent

Grassroots Realty Group Ltd.
1-833-477-6687

Email