Property Details

Featured in:

Winners:

Featured in:

Winners:

11 Fireside Common
Cochrane (A2291699)

$659,900
4
3
1,929 ft²
Loading Listing...

Loan Term
Interest Rate
Loan Amount
Annual Tax
Ann. Insurance

* Amounts are estimates only. Final payment amounts may vary.

Description

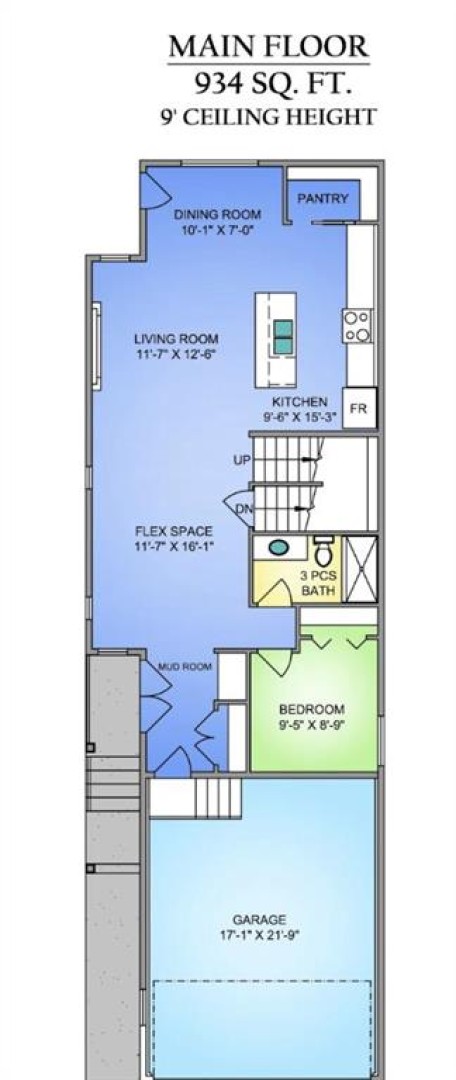
The "Capri" is stunning 4-bedroom, 3-bathroom brand new home scheduled for April 2026 completion offering almost 2,000 sq ft of living space by Genesis Builders Group in the vibrant community of Fireside. Step inside to discover a bright, open main floor with a convenient bedroom and full bathroom, perfect for guests, multi-generational living, or a private home office. The welcoming layout flows seamlessly from the flex space into the spacious living room and a chef-inspired kitchen featuring modern cabinetry, a large island, quartz countertops, and sleek stainless steel appliances. The adjacent dining area provides direct access to the backyard, extending your entertaining space for summer gatherings. A double attached garage connects to a practical mudroom, helping keep daily life organized. Upstairs, a central bonus room offers separation between the primary suite and the additional bedrooms, creating an ideal space for movie nights or a kids’ play area. The primary bedroom is a spacious sanctuary featuring an ensuite with dual sinks, an oversized shower, and a walk-in closet. Two additional well-sized bedrooms, a four-piece bathroom, and convenient upper-floor laundry complete this level, making everyday chores simple and efficient. The unfinished basement offers 9-foot ceilings and provides a blank canvas ready for your future development ideas. Located in the welcoming community of Fireside, residents enjoy a balance of small-town charm and modern convenience. This family-friendly neighbourhood offers scenic walking paths, parks, playgrounds, schools, and local shops, all within minutes of Cochrane’s amenities and a short drive to Calgary and the Rocky Mountains. This is a wonderful opportunity to own a brand-new home in one of Cochrane’s desirable communities.

Property details

Basic Info

MLS® #
A2291699
Property Type:
Residential
Subtype:
Detached
Subdivision:
Fireside
Price
$659,900
Sale/Lease:
For Sale
Size:
1,929 sq.ft.
Bedrooms:
4
Bathrooms:
3
Year Built:
2026 (0 years old)

Building Info

New Construction:
Yes
Structure Type:
House
Building Style:
2 Storey
Garage:
Yes
Parking:
Double Garage Attached
Fence:
Partial
Basement:
Full
Features:
Double Vanity, High Ceilings, Kitchen Island, Open Floorplan, Pantry, Stone Counters, Vinyl Windows, Walk-In Closet(s)
Fireplaces:
1
Inclusions:
N/A
Appliances:
Dishwasher, Microwave, Range Hood, Refrigerator, Stove(s)
Laundry:
Upper Level
Exterior Features:
BBQ gas line
Patio/Porch Features:
Other

Neighborhood Info

Nearby Amenities:
Other, Playground, Pond, Schools Nearby, Shopping Nearby, Walking/Bike Paths

Condo/Association Info

Condo Amenities:
Other
Condo Fee 2:
$75

Lot / Land Info

Lot Size:
0.08 acres
Lot Features:
Back Lane, Other
Zoning:
R-MX

Materials & Systems

Roof:
Asphalt Shingle
Exterior:
Vinyl Siding,Wood Frame
Floors:
Carpet, Vinyl
Foundation:
Poured Concrete
Heating:
Forced Air
Cooling:
None
Amenities:
Other, Playground, Pond, Schools Nearby, Shopping Nearby, Walking/Bike Paths

Listing Info

Possession:
Upon Completion
Days on Market:
1
Related Properties
Share This Listing
Ask About This Property
  • This site is protected by reCAPTCHA and the Google Privacy Policy and Terms of Service apply.
Your Agent

Grassroots Realty Group Ltd.
1-833-477-6687

Email