Property Details

Featured in:

Winners:

Featured in:

Winners:

109 Corner Glen Green NE
Calgary (A2291705)

$699,000
3
2+1
2,141 ft²
Loading Listing...

Loan Term
Interest Rate
Loan Amount
Annual Tax
Ann. Insurance

* Amounts are estimates only. Final payment amounts may vary.

Description

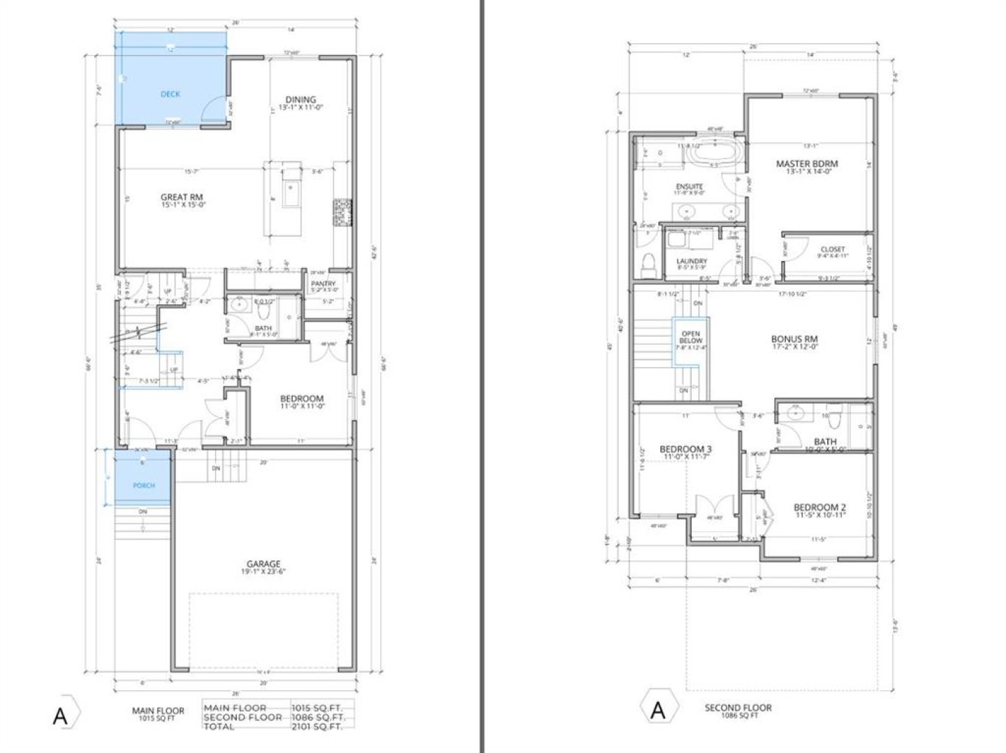
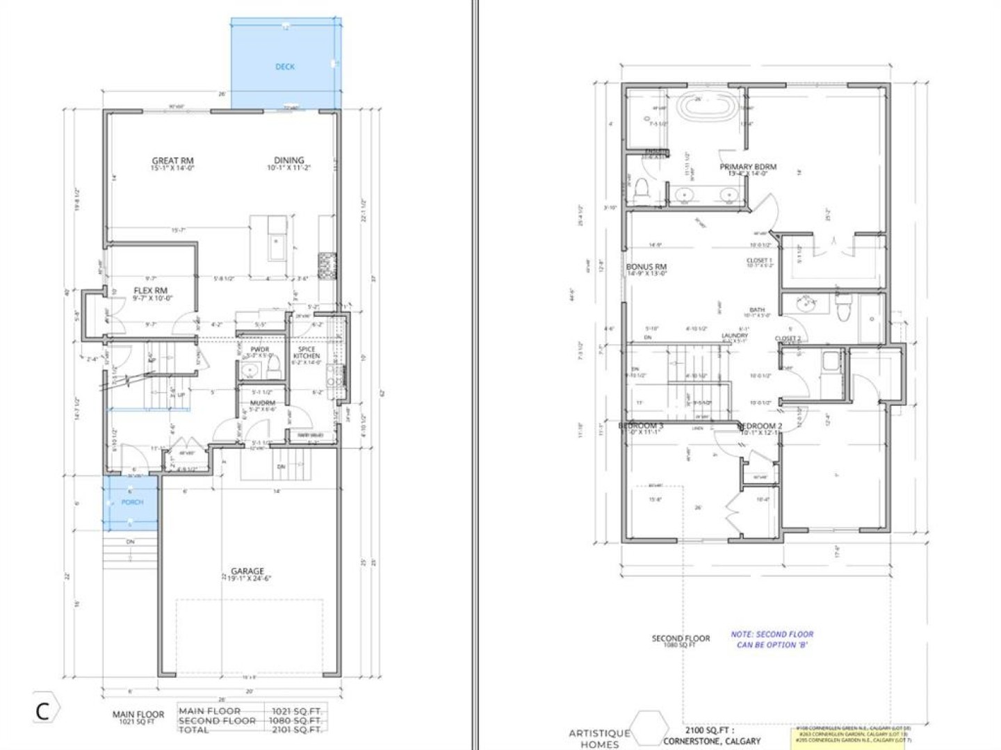
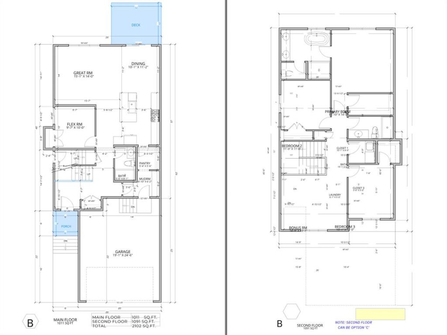
Stop settling for "almost perfect" and start building your dream. This is a rare opportunity to SECURE A PREMIUM, OVERSIZED PIE-SHAPED LOT IN THE VIBRANT COMMUNITY OF CORNERSTONE. With an IMPRESSIVE REAR WIDTH OF APPROXIMATELY 57 FEET, you finally have the space to create the sprawling backyard you’ve always wanted. Whether you have a vision from scratch or want a head start, we provide the flexibility to ensure your home fits your lifestyle perfectly. START WITH OUR POPULAR PRE-PLANNED MODELS AND MODIFY THEM TO SUIT YOUR FAMILY’S SPECIFIC NEEDS. All our pre-planned options already feature popular and much needed Main Floor Bedroom and Full Bathroom, Upstairs Bonus Room and customizations can be done to include Spice Kitchen, Front Facing Bonus Room and much more! THIS LOT IS JUST WALKING DISTANCE TO AN EXISTING PLAYGROUND and a few minutes from the future school site and the upcoming community recreation center. Cornerstone offers an effortless access to Country Hills Blvd and Stoney Trail, keeping the rest of Calgary within easy reach. Discuss with us about your need for a finished basement legal suite (subject to permits and City of Calgary approval). Don't miss this opportunity of building your dream home on a not so commonly available pie-shaped lot.

Property details

Basic Info

MLS® #
A2291705
Property Type:
Residential
Subtype:
Detached
Subdivision:
Cornerstone
Price
$699,000
Sale/Lease:
For Sale
Size:
2,141 sq.ft.
Bedrooms:
3
Bathrooms:
2 full / 1 half
Year Built:
2026 (0 years old)

Building Info

New Construction:
Yes
Builder:
Artistique Homes
Structure Type:
House
Building Style:
2 Storey
Garage:
Yes
Parking:
Additional Parking, Double Garage Attached, Driveway, Garage Door Opener, Garage Faces Front
Basement:
Full
Features:
Breakfast Bar, Built-in Features, Double Vanity, No Animal Home, No Smoking Home, Quartz Counters
Fireplaces:
1
Inclusions:
N/A
Appliances:
Dishwasher, Dryer, Electric Range, Microwave Hood Fan, Refrigerator, Washer
Laundry:
Laundry Room
Exterior Features:
BBQ gas line, Private Yard
Patio/Porch Features:
Deck

Neighborhood Info

Nearby Amenities:
Airport/Runway, Park, Playground, Sidewalks, Street Lights

Condo/Association Info

Condo Amenities:
Other
Condo Fee 2:
$53

Lot / Land Info

Lot Size:
0.11 acres
Lot Features:
Back Yard, Pie Shaped Lot
Zoning:
R-G

Materials & Systems

Roof:
Asphalt Shingle
Exterior:
Concrete,Stone,Vinyl Siding,Wood Frame
Floors:
Carpet, Ceramic Tile, Vinyl Plank
Foundation:
Poured Concrete
Heating:
Central, Natural Gas
Cooling:
None
Amenities:
Airport/Runway, Park, Playground, Sidewalks, Street Lights

Listing Info

Possession:
Negotiable
Related Properties
Share This Listing
Ask About This Property
  • This site is protected by reCAPTCHA and the Google Privacy Policy and Terms of Service apply.
Your Agent

Grassroots Realty Group Ltd.
1-833-477-6687

Email