Property Details

Featured in:

Winners:

Featured in:

Winners:

41177 Range Road 18-1
Rural Stettler No. 6, County of (A2291958)

$225,000
3
2
1,195 ft²
Loading Listing...

Loan Term
Interest Rate
Loan Amount
Annual Tax
Ann. Insurance

* Amounts are estimates only. Final payment amounts may vary.

Description

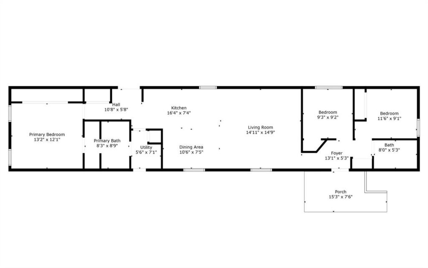
If you’ve been longing for wide open space and total privacy, this 10.26-acre property in the County of Stettler might be exactly what you’ve been waiting for. Surrounded by mature trees, the entire yard is beautifully sheltered from the outside world—a peaceful, private haven with room to grow, build, and create. The 1996 mobile home is serviced with a well, septic system, and 100 amp power, offering a solid starting point for your acreage dreams. Whether you’re looking to homestead or simply enjoy the quiet life, there’s space here to make it your own. The fully finished and heated shop is a dream for mechanics and woodworkers alike. Outfitted with 220-volt wiring, multiple plug-ins, and a poured concrete pad out front, it’s the ideal space for working, creating, or just having a place to call your own. There’s also an additional power pole in the southeast corner of the property, complete with 220-volt wiring—offering the potential for future expansion, additional outbuildings, or the potential to service a second site. Zoned Ag, this property is well suited for a hobby farm, a small herd of cattle, or a few horses. If you’re craving a quieter life and a place to build your own kind of future, this private acreage offers the space, seclusion, and potential to do just that.

Property details

Basic Info

MLS® #
A2291958
Property Type:
Residential
Subtype:
Detached
Subdivision:
NONE
Price
$225,000
Sale/Lease:
For Sale
Size:
1,195 sq.ft.
Bedrooms:
3
Bathrooms:
2
Year Built:
1996 (30 years old)

Building Info

Structure Type:
Manufactured House
Building Style:
Acreage with Residence, Mobile Home-Single Wide
Garage:
Yes
Parking:
220 Volt Wiring, Double Garage Detached, Heated Garage, Workshop in Garage
Basement:
No
Features:
Skylight(s), Vaulted Ceiling(s), Vinyl Windows
Inclusions:
None
Appliances:
None
Laundry:
In Unit
Exterior Features:
None
Patio/Porch Features:
Deck

Neighborhood Info

Nearby Amenities:
None

Acreage/Farm Info

Nearest Town:
Donalda

Lot / Land Info

Lot Size:
10.26 acres
Lot Features:
Front Yard, Many Trees
Water:
Private, Well
Sewer:
Septic System
Zoning:
A

Materials & Systems

Roof:
Metal
Exterior:
Metal Frame,Wood Frame
Floors:
Carpet, Laminate, Vinyl
Foundation:
Block
Heating:
Forced Air
Cooling:
None
Amenities:
None

Listing Info

Possession:
Other/See Remarks
Days on Market:
7
Related Properties
Share This Listing
Ask About This Property
  • This site is protected by reCAPTCHA and the Google Privacy Policy and Terms of Service apply.
Your Agent

Grassroots Realty Group Ltd.
1-833-477-6687

Email