Property Details

Featured in:

Winners:

Featured in:

Winners:

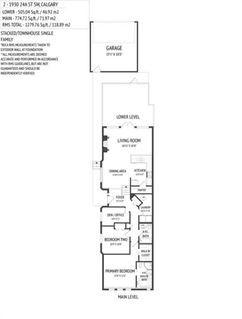
2, 1930 24A Street SW
Calgary (A2292046)

$499,900
2
2
1,280 ft²
Loading Listing...

Loan Term
Interest Rate
Loan Amount
Annual Tax
Ann. Insurance

* Amounts are estimates only. Final payment amounts may vary.

Description

OPEN HOUSE THIS WEEKEND SATURDAY AND SUNDAY. Welcome to comfortable inner-city living in the vibrant community of Killarney. This beautifully maintained bungalow-style townhome offers the perfect blend of style, comfort, and convenience in a quiet residential setting, just moments from the energy of 17th Avenue. Freshly painted throughout, the home feels bright and inviting from the moment you step inside. Large windows fill the space with natural light, highlighting the dramatic 12-foot ceilings, luxury vinyl plank and slate flooring, and the warmth of in-floor heating. The open design creates a welcoming flow that’s ideal for both relaxing and entertaining. The kitchen is thoughtfully designed with an eating bar, pantry, new black double sink, and stylish new backsplash, making it both functional and attractive for everyday living. Just off the main living area, step outside to your cozy, private fenced patio—a perfect spot to enjoy a quiet morning coffee or unwind at the end of the day. This spacious home offers over 1,200 sq. ft. of living space with two bedrooms and a versatile den area ideal for a home office. The generous primary bedroom features a walk-in closet and a private ensuite with a jetted soaker tub and separate shower, creating a comfortable retreat. A second full bathroom adds convenience for guests or family. The well-maintained complex consists of only four units and is self-managed, helping keep condo fees low while maintaining pride of ownership throughout. You’ll appreciate the convenience of your garage parking stall at the rear, along with easy access to 17th Avenue, Crowchild Trail, parks, playgrounds, schools, transit, shops, and restaurants. If you’re looking for bright, low-maintenance inner-city living in one of Calgary’s most loved neighbourhoods, this Killarney gem is a must see. BOOK YOUR APPOINTMENT TODAY. Some of the photos have been virtually staged.

Property details

Basic Info

MLS® #
A2292046
Property Type:
Residential
Subtype:
Row/Townhouse
Subdivision:
Richmond
Price
$499,900
Sale/Lease:
For Sale
Size:
1,280 sq.ft.
Bedrooms:
2
Bathrooms:
2
Year Built:
1999 (27 years old)

Building Info

Structure Type:
Four Plex
Building Style:
Bungalow
Garage:
Yes
Parking:
Single Garage Detached
Fence:
Fenced
Basement:
No
Features:
No Animal Home, No Smoking Home
Fireplaces:
1
Inclusions:
NONE
Appliances:
Dishwasher, Dryer, Electric Stove, Refrigerator, Washer
Laundry:
In Hall
Exterior Features:
Private Entrance, Private Yard
Patio/Porch Features:
Patio

Neighborhood Info

Nearby Amenities:
Park, Playground, Pool, Schools Nearby, Shopping Nearby, Sidewalks, Tennis Court(s)

Condo/Association Info

Condo Type:
Conventional Condo
Condo Amenities:
None
Condo Fee:
$325
Condo Fee Includes:
Common Area Maintenance, Insurance, Maintenance Grounds, Parking, Reserve Fund Contributions, Snow Removal
Pets Allowed:
Yes

Lot / Land Info

Lot Features:
Back Lane, Back Yard, Few Trees, Front Yard
Zoning:
M-C1

Materials & Systems

Roof:
Asphalt Shingle
Exterior:
Stucco,Vinyl Siding,Wood Frame
Floors:
Ceramic Tile, Laminate, Slate
Foundation:
None
Heating:
In Floor, Natural Gas
Cooling:
None
Amenities:
Park, Playground, Pool, Schools Nearby, Shopping Nearby, Sidewalks, Tennis Court(s)

Listing Info

Possession:
15 Days / Neg
Days on Market:
2
Related Properties
Share This Listing
Ask About This Property
  • This site is protected by reCAPTCHA and the Google Privacy Policy and Terms of Service apply.
Your Agent

Grassroots Realty Group Ltd.
1-833-477-6687

Email