Property Details

Featured in:

Winners:

Featured in:

Winners:

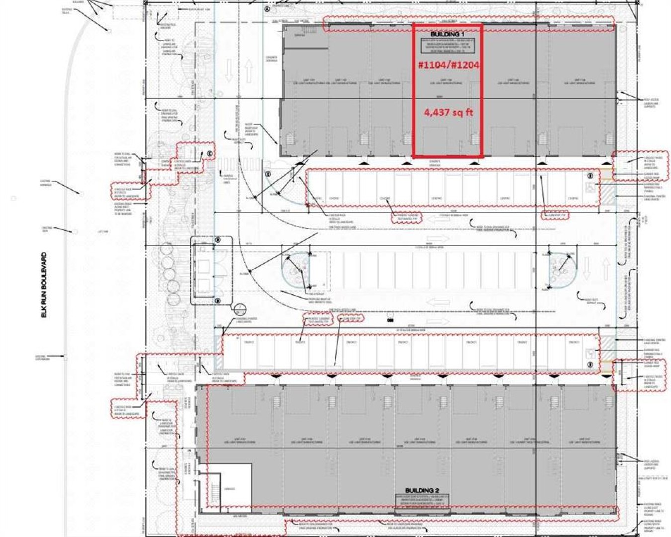
1104 & 1204, 100 Alpine Meadows
Canmore (A2292254)

$25 per sq.ft.
4,140 ft²
Loading Listing...

Loan Term
Interest Rate
Loan Amount
Annual Tax
Ann. Insurance

* Amounts are estimates only. Final payment amounts may vary.

Description

Elk Meadows is Canmore's newest warehouse development, showcasing updated Alpine architecture. With high exposure to Elk Run Boulevard and close proximity to the Trans-Canada Highway, the property offers quick access to all areas of Canmore and the surrounding region. This well-engineered two-storey building incorporates structural steel construction and concrete floors. The unit offers a total of 4,140 sq. ft., featuring a 12' x 12' drive-in door and 16' clear ceiling height on the main level. The second floor has 12' clear ceilings and is well suited for open workspace or active uses. Abundant natural light fills the space, making it ideal for administrative and office operations. Each floor is serviced by 200A, 208V power, and the building is equipped with a full sprinkler system. This is an excellent opportunity for contractors, service companies, breweries, recreational facilities, offices, studios, and pubs. The tenant improvement allowance includes a washroom and office on the main floor, as well as a washroom and furnace room on the second floor. Operating costs estimated at $7.40 sq ft. Available immediately.

Property details

Basic Info

MLS® #
A2292254
Property Type:
Commercial
Subtype:
Industrial
Subdivision:
Elk Run
Price
$25 per sq.ft.
Sale/Lease:
For Lease
Size:
4,140 sq.ft.
Year Built:
2024 (2 years old)

Building Info

Structure Type:
Warehouse
Building Name:
Elk Meadows
Garage:
No
Fence:
Basement:
No
Inclusions:
N/A

Condo/Association Info

Condo Fee:
$800

Lot / Land Info

Lot Features:
Level, Paved
Zoning:
IND-1

Materials & Systems

Roof:
Membrane
Exterior:
See Remarks
Foundation:
Poured Concrete

Listing Info

Possession:
Immediate,Negotiable
Related Properties
Share This Listing
Ask About This Property
  • This site is protected by reCAPTCHA and the Google Privacy Policy and Terms of Service apply.
Your Agent

Grassroots Realty Group Ltd.
1-833-477-6687

Email