Property Details

Featured in:

Winners:

Featured in:

Winners:

237 7 Street SW
Medicine Hat (A2293578)

$349,999
4
2
950 ft²
Loading Listing...

Loan Term
Interest Rate
Loan Amount
Annual Tax
Ann. Insurance

* Amounts are estimates only. Final payment amounts may vary.

Description

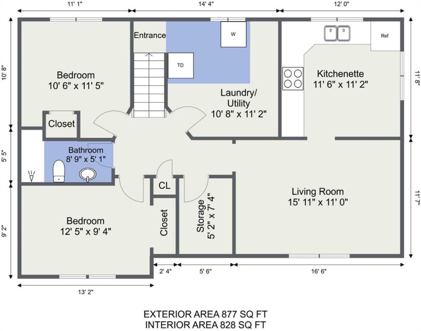
Welcome to the perfect starter home or revenue property! This charming 950 sq. ft. raised bungalow offers incredible versatility with a legal 877 sq. ft. basement suite and a 24' x 26' detached garage. Located on the desirable Southwest Hill, this home is close to many great amenities, making it an ideal option for homeowners and investors alike. As you step inside, you’re immediately welcomed by the home’s character and warmth. The main living area is both functional and inviting, filled with natural light from the large feature window. The kitchen offers a practical layout with convenient access to the laundry area and back entrance. The main floor is completed by two well-sized bedrooms and a full bathroom. The updated lower-level legal suite provides excellent additional living space or income potential. With two additional bedrooms, a spacious living area, full kitchen, and large windows that bring in plenty of natural light, the basement feels bright and comfortable. Outside, you’ll find a fully fenced yard, a concrete patio area perfect for relaxing or entertaining, and a detached garage with a paved parking pad, providing plenty of parking options. With its flexible layout, income potential, and great location, this property offers so many possibilities and could be the perfect home or investment for you.

Property details

Basic Info

MLS® #
A2293578
Property Type:
Residential
Subtype:
Detached
Subdivision:
SW Hill
Price
$349,999
Sale/Lease:
For Sale
Size:
950 sq.ft.
Bedrooms:
4
Bathrooms:
2
Year Built:
1953 (73 years old)

Building Info

Structure Type:
House
Building Style:
Bungalow
Garage:
Yes
Parking:
Double Garage Detached, Off Street, Parking Pad
Fence:
Fenced
Basement:
Full
Features:
See Remarks, Separate Entrance
Inclusions:
2 Fridges, 2 stoves, 2 washer & Dryer sets, Garage door opener remote
Appliances:
Central Air Conditioner, Electric Range, Refrigerator, Washer/Dryer
Laundry:
Multiple Locations
Exterior Features:
Other
Patio/Porch Features:
Patio

Neighborhood Info

Nearby Amenities:
Playground, Pool, Schools Nearby, Shopping Nearby, Sidewalks, Street Lights, Walking/Bike Paths

Lot / Land Info

Lot Size:
0.14 acres
Lot Features:
Back Lane, Back Yard, City Lot, Landscaped, Street Lighting
Zoning:
R-LD

Materials & Systems

Roof:
Asphalt Shingle
Exterior:
Mixed
Floors:
Carpet, Hardwood, Linoleum, Tile, Vinyl Plank
Foundation:
Poured Concrete
Heating:
Forced Air
Cooling:
Central Air
Amenities:
Playground, Pool, Schools Nearby, Shopping Nearby, Sidewalks, Street Lights, Walking/Bike Paths

Listing Info

Possession:
Subject To Tenancy
Days on Market:
5
Related Properties
Share This Listing
Ask About This Property
  • This site is protected by reCAPTCHA and the Google Privacy Policy and Terms of Service apply.
Your Agent

Grassroots Realty Group Ltd.
1-833-477-6687

Email