Property Details

Featured in:

Winners:

Featured in:

Winners:

321 Washington Way SE
Medicine Hat (A2293698)

$243,000
3
2
1,380 ft²
Note: This property may have a conditional offer. Talk to us for details.
Loading Listing...

Loan Term
Interest Rate
Loan Amount
Annual Tax
Ann. Insurance

* Amounts are estimates only. Final payment amounts may vary.

Description

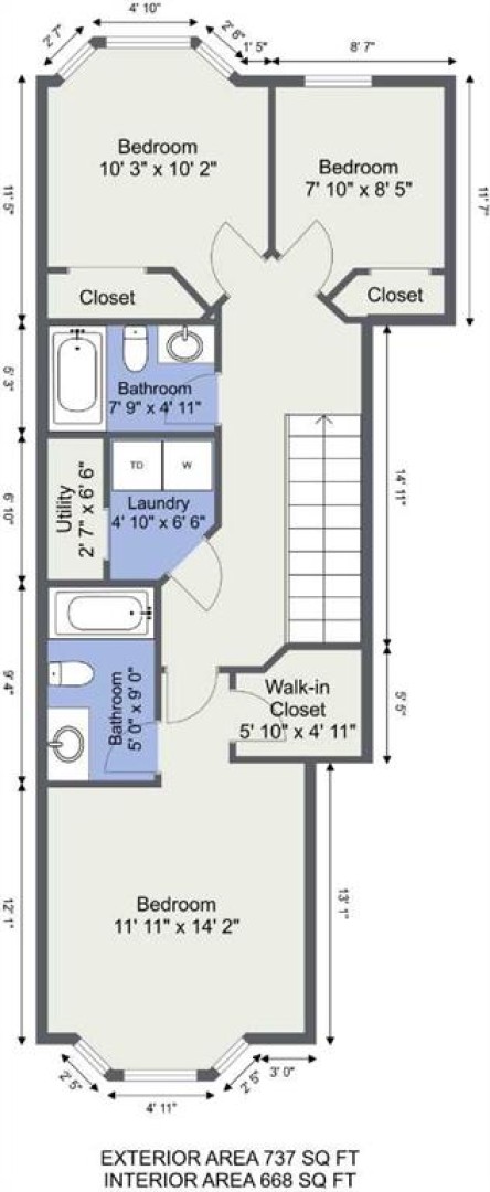
Welcome to 321 Washington Way SE, a bright and inviting end unit condo in the popular River Flats neighborhood. This home is ideal for families, first-time buyers, or anyone seeking a low-maintenance home close to amenities. Plenty of natural light and well-designed spaces make it comfortable and practical. The main floor opens with a dining area that connects to the kitchen and living room. The kitchen has an island with ample workspace, making cooking and daily life easier. Beyond the kitchen is a bright living room with a large bay window, offering a warm, relaxing spot to gather with family and friends. Upstairs, there are two comfortable bedrooms, a four-piece bathroom, and laundry on the same floor for convenience. The primary suite features a walk-in closet and its own four-piece ensuite, providing a private retreat at the end of the day. At the front of the home, you’ll find 2 parking stalls and a patio perfect for barbecuing or enjoying extra outdoor living space in spring and summer. Parking is located at the front of the property, making daily living simple and accessible. This neighborhood is close to schools, shopping, parks, playgrounds, tennis courts, and scenic walking and biking paths, so you’ll enjoy convenience and a great lifestyle. Whether you prefer quiet evenings at home or enjoy nearby amenities, this property offers comfort, practicality, and a great place to call home.

Property details

Basic Info

MLS® #
A2293698
Property Type:
Residential
Subtype:
Row/Townhouse
Subdivision:
River Flats
Price
$243,000
Sale/Lease:
For Sale
Size:
1,380 sq.ft.
Bedrooms:
3
Bathrooms:
2
Year Built:
2003 (23 years old)

Building Info

Structure Type:
Five Plus
Building Style:
2 Storey
Garage:
No
Parking:
Off Street, Stall
Basement:
No
Features:
Kitchen Island, Pantry, Vinyl Windows, Walk-In Closet(s)
Inclusions:
fridge, stove, dishwasher, OTR hood fan, washer, dryer, all window coverings, all floating shelves, AC unit
Appliances:
Central Air Conditioner, Dishwasher, Refrigerator, Stove(s), Washer/Dryer, Window Coverings
Laundry:
Upper Level
Exterior Features:
Other
Patio/Porch Features:
Deck

Neighborhood Info

Nearby Amenities:
Park, Playground, Pool, Schools Nearby, Shopping Nearby, Sidewalks, Street Lights, Tennis Court(s), Walking/Bike Paths

Condo/Association Info

Condo Type:
Conventional Condo
Condo Amenities:
Parking
Condo Fee:
$336
Condo Fee Includes:
Common Area Maintenance, Gas, Insurance, Maintenance Grounds, Parking, Professional Management, Reserve Fund Contributions, Snow Removal, Trash
Pets Allowed:
Yes

Lot / Land Info

Lot Features:
Other
Zoning:
R-MD

Materials & Systems

Roof:
Asphalt Shingle
Exterior:
Mixed
Floors:
Carpet, Laminate, Linoleum
Foundation:
Other
Heating:
Forced Air
Cooling:
Central Air
Amenities:
Park, Playground, Pool, Schools Nearby, Shopping Nearby, Sidewalks, Street Lights, Tennis Court(s), Walking/Bike Paths

Listing Info

Possession:
30 Days / Neg
Days on Market:
4
Related Properties
Share This Listing
Ask About This Property
  • This site is protected by reCAPTCHA and the Google Privacy Policy and Terms of Service apply.
Your Agent

Grassroots Realty Group Ltd.
1-833-477-6687

Email