Property Details

Featured in:

Winners:

Featured in:

Winners:

21, 251 90 Avenue SE
Calgary (A2294356)

$309,900
2
1
864 ft²
Loading Listing...

Loan Term
Interest Rate
Loan Amount
Annual Tax
Ann. Insurance

* Amounts are estimates only. Final payment amounts may vary.

Description

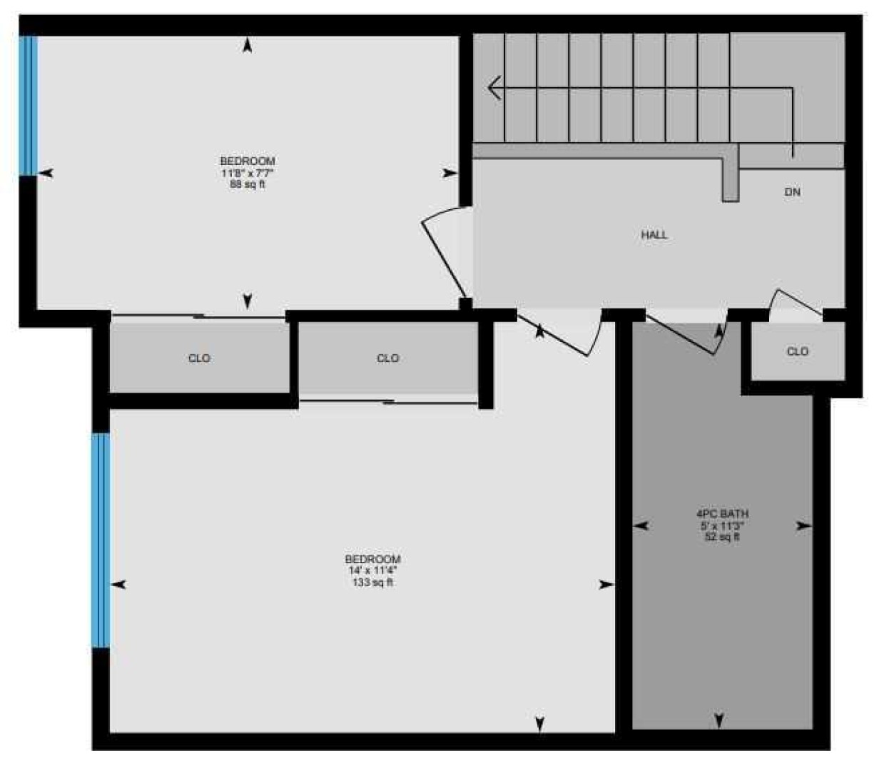
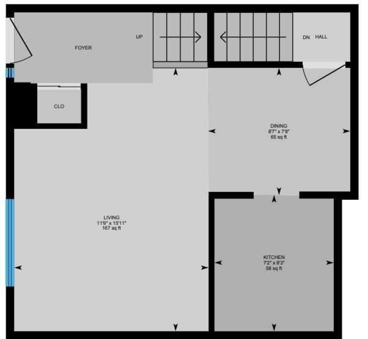
Like Living in a Park! Mature Trees grace the grounds of this well-maintained complex in the Heart of Amenity-rich Acadia. Sunny 2 Bedroom END Unit Townhome with Stunning NEW Custom Kitchen Renovation - OVER $35,000 - Knockdown Ceilings, Quartz Counters, STAINLESS STEEL Appliances & Gorgeous HIGH QUALITY Soft Close Cabinetry with X-TRA Height Upper Cabinets & Dovetailed drawers. Two Spacious Upper Bedrooms with TREED Views, a large Bathroom with newer toilet, shower head & flooring, a Private Fenced Yard, lots of extra storage space in the basement & 1 nearby Parking stall with Plug-in. Updated Vinyl Windows, Newer Hot Water Tank (2 years), Professionally Managed with Affordable Condo Fees ($312.36) that Include Water & Sewer, & it's PET-FRIENDLY too! Let’s talk Location - a Short Walk to Schools, Area Shops & Restaurants, the Tennis Academy, Acadia Recreation Complex, Aquatic & Fitness Centre, Transit & More!

Property details

Basic Info

MLS® #
A2294356
Property Type:
Residential
Subtype:
Row/Townhouse
Subdivision:
Acadia
Price
$309,900
Sale/Lease:
For Sale
Size:
864 sq.ft.
Bedrooms:
2
Bathrooms:
1
Year Built:
1970 (56 years old)

Building Info

Structure Type:
Five Plus
Building Style:
2 Storey
Garage:
No
Parking:
Assigned, Off Street, Plug-In, Stall
Fence:
Fenced
Basement:
Full
Features:
Ceiling Fan(s), No Smoking Home, Quartz Counters, Storage, Vinyl Windows
Inclusions:
STORAGE SHED & THE FOLLOWING BASEMENT ITEMS - FRIDGE, COUCH, 2 FILING CABINETS & WOODEN SHELVING UNDER STAIRS.
Appliances:
Dryer, Electric Stove, Microwave Hood Fan, Refrigerator, Washer
Laundry:
In Basement, In Unit, Lower Level
Exterior Features:
Private Entrance, Private Yard
Patio/Porch Features:
None

Neighborhood Info

Nearby Amenities:
Playground, Pool, Schools Nearby, Shopping Nearby, Tennis Court(s), Walking/Bike Paths

Condo/Association Info

Condo Type:
Conventional Condo
Condo Amenities:
None
Condo Fee:
$312
Condo Fee Includes:
Maintenance Grounds, Professional Management, Reserve Fund Contributions, Sewer, Snow Removal, Water
Pets Allowed:
Yes

Lot / Land Info

Lot Features:
Front Yard, Landscaped
Zoning:
M-C1

Materials & Systems

Roof:
Asphalt Shingle
Exterior:
Stucco,Wood Frame,Wood Siding
Floors:
Carpet, Laminate, Linoleum
Foundation:
Poured Concrete
Heating:
Forced Air, Natural Gas
Cooling:
None
Amenities:
Playground, Pool, Schools Nearby, Shopping Nearby, Tennis Court(s), Walking/Bike Paths

Listing Info

Possession:
60 Days / Neg
Media & Video

Experience this property!

Virtual Tour
Related Properties
Share This Listing
Ask About This Property
  • This site is protected by reCAPTCHA and the Google Privacy Policy and Terms of Service apply.
Your Agent

Grassroots Realty Group Ltd.
1-833-477-6687

Email