Property Details

Featured in:

Winners:

Featured in:

Winners:

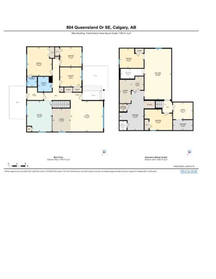
804 Queensland Drive SE
Calgary (A2294924)

$570,000
3
1+2
1,199 ft²
Loading Listing...

Loan Term
Interest Rate
Loan Amount
Annual Tax
Ann. Insurance

* Amounts are estimates only. Final payment amounts may vary.

Description

Rarely does a home like this come to market. For over 40 years, 804 Queensland Drive has been cherished by a single owner, and that lifelong care shows in every corner. This 1,200 sq. ft. family retreat features 3 bedrooms, 1 full and 2-1/2 baths, seamlessly blending durability with comfort. From the updated triple-pane windows and newer appliances to the private, peaceful front entrance/court yard, perfect for your morning coffee, this home is move-in ready. Downstairs, the massive basement offers a sprawling rec room and more storage than you’ll ever need (including a dedicated cold room). Complete with a huge yard and an oversized double garage, this is a rare opportunity to start your own chapter in a home that has been truly loved. Close to Public and Catholic Schools and all your shopping needs just down the road. This home is in the perfect location.

Property details

Basic Info

MLS® #
A2294924
Property Type:
Residential
Subtype:
Detached
Subdivision:
Queensland
Price
$570,000
Sale/Lease:
For Sale
Size:
1,199 sq.ft.
Bedrooms:
3
Bathrooms:
1 full / 2 half
Year Built:
1976 (50 years old)

Building Info

Structure Type:
House
Building Style:
Bungalow
Garage:
Yes
Parking:
Double Garage Detached, Oversized
Fence:
Fenced
Basement:
Full
Features:
No Animal Home, No Smoking Home, Open Floorplan
Inclusions:
none
Appliances:
Dryer, Electric Stove, Refrigerator, Washer
Laundry:
In Basement
Exterior Features:
Courtyard, Private Yard, Storage
Patio/Porch Features:
Deck, Front Porch

Neighborhood Info

Nearby Amenities:
Playground, Schools Nearby, Shopping Nearby, Sidewalks, Street Lights

Lot / Land Info

Lot Size:
0.13 acres
Lot Features:
Back Lane, Back Yard
Zoning:
R-CG

Materials & Systems

Roof:
Asphalt Shingle
Exterior:
Vinyl Siding
Floors:
Carpet, Ceramic Tile, Laminate
Foundation:
Poured Concrete
Heating:
Forced Air, Natural Gas
Cooling:
None
Amenities:
Playground, Schools Nearby, Shopping Nearby, Sidewalks, Street Lights

Listing Info

Possession:
Negotiable
Related Properties
Share This Listing
Ask About This Property
  • This site is protected by reCAPTCHA and the Google Privacy Policy and Terms of Service apply.
Your Agent

Grassroots Realty Group Ltd.
1-833-477-6687

Email