Property Details

Featured in:

Winners:

Featured in:

Winners:

2740 16A Street SE
Calgary (A2243945)

$630,000
2
1+1
645 ft²
Loading Listing...

Loan Term
Interest Rate
Loan Amount
Annual Tax
Ann. Insurance

* Amounts are estimates only. Final payment amounts may vary.

Description

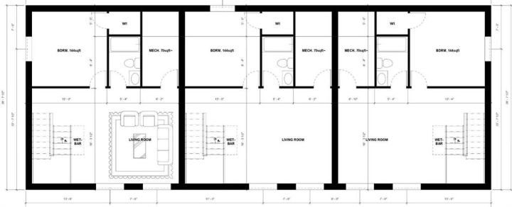
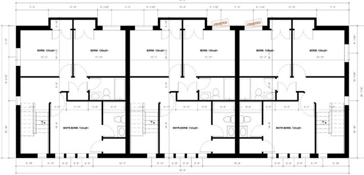
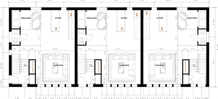
Attention Investors & Developers! Rare opportunity to acquire a prime R-CG corner lot in the highly desirable community of Inglewood. This property offers over 4,850 sq ft of development-ready land with Conditional Approval on a Development Permit (DP) for a 3-plex however will transfer this project with clean Development Permit (DP)The proposed plans feature three 2-storey units, each offering approximately 1,500 sq ft of above-grade living space, including 3 bedrooms and 2.5 bathrooms, plus a 1-bedroom, 1-bathroom basement per unit. While the existing home is currently livable, the property is being sold as land value only—no warranties or representations will be provided on the current structure. DP Drawings, Site Survey, RPR, and the DP Decision Letter are available and uploaded. This is a fantastic opportunity to develop a high-demand, modern multi-family project in one of Calgary’s most vibrant and sought-after inner-city neighborhoods.

Property details

Basic Info

MLS® #
A2243945
Property Type:
Residential
Subtype:
Detached
Subdivision:
Inglewood
Price
$630,000
Sale/Lease:
For Sale
Size:
645 sq.ft.
Bedrooms:
2
Bathrooms:
1 full / 1 half
Year Built:
1914 (111 years old)

Building Info

Structure Type:
House
Building Style:
Bungalow
Garage:
No
Parking:
Off Street
Fence:
Fenced
Basement:
Finished, Full
Features:
Storage
Inclusions:
None
Appliances:
Gas Range, Range Hood, Refrigerator, Washer/Dryer
Laundry:
In Basement
Exterior Features:
None
Patio/Porch Features:
Deck

Neighborhood Info

Nearby Amenities:
None

Lot / Land Info

Lot Size:
0.11 acres
Lot Features:
Back Lane, Corner Lot, Rectangular Lot
Zoning:
R-CG

Materials & Systems

Roof:
Asphalt Shingle
Exterior:
Wood Frame,Wood Siding
Floors:
Carpet, Linoleum
Foundation:
Poured Concrete
Heating:
Central, Natural Gas
Cooling:
None
Amenities:
None

Listing Info

Possession:
60 Days / Neg
Days on Market:
12
Related Properties
Share This Listing
Ask About This Property
  • This site is protected by reCAPTCHA and the Google Privacy Policy and Terms of Service apply.
Your Agent

Grassroots Realty Group Ltd.
1-833-477-6687

Email