Property Details

Featured in:

Winners:

Featured in:

Winners:

2, 2660 22 Street
Red Deer (A2277606)

$3,500,000
Loading Listing...

Loan Term
Interest Rate
Loan Amount
Annual Tax
Ann. Insurance

* Amounts are estimates only. Final payment amounts may vary.

Description

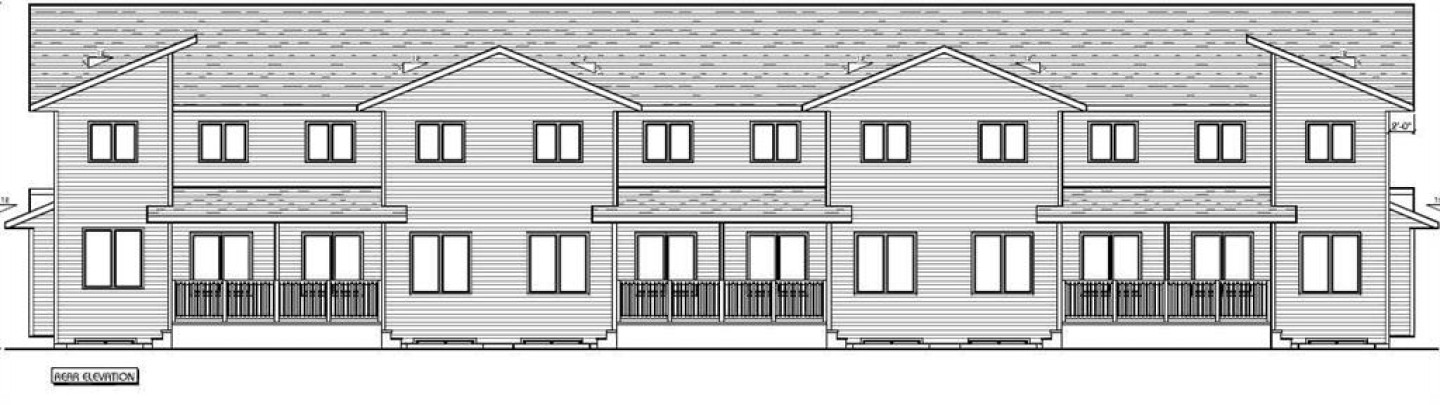
**The site is permit-ready for the development of 77 townhomes with full construction plans and a development permit in place** Multifamily Development Land! 4.35 acres (3.91 net developable) zoned R2 (med. density), this is a prime location in the City of Red Deer! The Red Deer market is in need of two things; affordable housing and new rental accommodation, this site can serve one or both of these categories. Well located in S.E. Red Deer in a new growth area that provides all essential services, schools, shopping, trail systems, and the largest recreation center in Red Deer. This is an area where people prefer to live.

Property details

Basic Info

MLS® #
A2277606
Property Type:
Land
Subtype:
Residential Land
Subdivision:
Lancaster Green
Price
$3,500,000
Sale/Lease:
For Sale

Building Info

Garage:
No
Basement:
No
Inclusions:
n/a

Lot / Land Info

Lot Size:
4.35 acres
Zoning:
R-M

Listing Info

Possession:
Immediate
Related Properties
Share This Listing
Ask About This Property
  • This site is protected by reCAPTCHA and the Google Privacy Policy and Terms of Service apply.
Your Agent

Grassroots Realty Group Ltd.
1-833-477-6687

Email