Property Details

Featured in:

Winners:

Featured in:

Winners:

39 Cottageclub Lane
Rural Rocky View County (A2279339)

$725,000
3
2+1
950 ft²
Loading Listing...

Loan Term
Interest Rate
Loan Amount
Annual Tax
Ann. Insurance

* Amounts are estimates only. Final payment amounts may vary.

Description

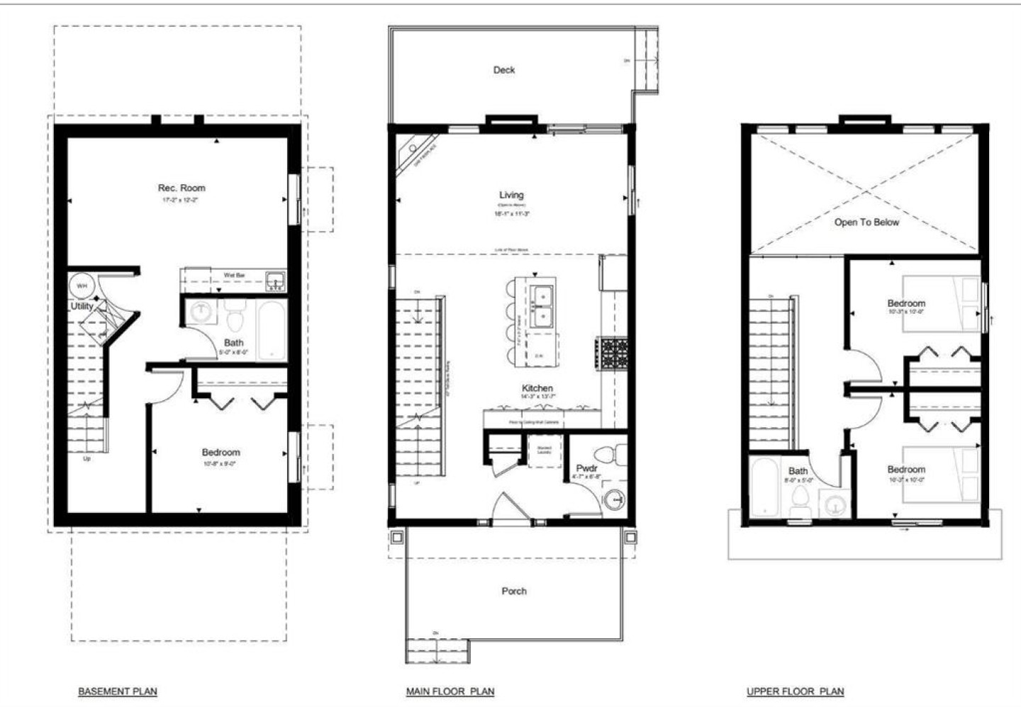
Welcome to Cottage Club at Ghost Lake, a private gated community where you can relax, unwind, and enjoy a lifestyle that feels like a vacation every day. Whether you're looking for a peaceful weekend escape or a year-round retreat, this charming lakefront neighbourhood has everything you need and more. Picture this: your own luxurious cottage, steps from the water, with private beach access, cozy hammocks along the shore, a BBQ area, sand volleyball courts, an observatory, and even a private boat launch with day-use docking for residents. Want more? The community’s recreation centre features an indoor pool, hot tub, fitness facility, tennis courts, library, and a wood-fired pizza oven that’s perfect for summer nights with friends and family. Plus, you're just 20 minutes from Kananaskis, with over 4,000 square kilometers of stunning wilderness to explore—hiking, fishing, skiing at Nakiska, snowshoeing, or simply enjoying the fresh mountain air. This newly built 3-bedroom, 2.5-bathroom cottage by Exquisite Homes offers over 1,400 square feet of beautifully crafted living space. On the main floor, you’ll find a bright open-concept living room with a Montigo gas fireplace, a stylish chef’s kitchen with quartz counters, high-end stainless steel appliances, a gas range, and floor-to-ceiling cabinetry. There’s also a powder room and stacked laundry for added convenience. Step outside to enjoy your front and back patios, perfect for morning coffee or evening drinks under the stars. Upstairs, tall glass railings and an open-to-below design give the home a modern, airy feel. You’ll find two spacious bedrooms and a full four-piece bathroom up here—ideal for guests or family. Downstairs, the fully finished basement is made for entertaining, with a large rec room perfect for movie nights, a full wet bar with a long quartz island, a third spacious bedroom, another full bathroom, and plenty of storage. Whether you're retiring, investing, or simply craving a lifestyle upgrade, this home checks all the boxes. It also happens to sit on one of the largest developed lots in the entire community. Just minutes from Cochrane, Canmore, Calgary, and the Rockies, this lake retreat offers the peace and privacy you want with the convenience you didn’t expect. Don’t just buy a cottage. Create a lifestyle.

Property details

Basic Info

MLS® #
A2279339
Property Type:
Residential
Subtype:
Detached
Subdivision:
Cottage Club at Ghost Lake
Price
$725,000
Sale/Lease:
For Sale
Size:
950 sq.ft.
Bedrooms:
3
Bathrooms:
2 full / 1 half
Year Built:
2026 (0 years old)

Building Info

New Construction:
Yes
Builder:
Exquisite Homes LTD
Structure Type:
House
Building Style:
2 Storey
Garage:
Yes
Parking:
Double Garage Detached, Driveway
Fence:
Partial
Basement:
Full
Features:
Built-in Features, Low Flow Plumbing Fixtures, Natural Woodwork, No Animal Home, No Smoking Home, Open Floorplan, Quartz Counters, Recessed Lighting, Vinyl Windows, Wet Bar
Fireplaces:
1
Inclusions:
N/A
Appliances:
Dishwasher, Dryer, Gas Stove, Refrigerator, Washer
Laundry:
Main Level
Exterior Features:
BBQ gas line
Patio/Porch Features:
Deck, Porch

Neighborhood Info

Nearby Amenities:
Clubhouse, Gated, Lake, Park, Playground, Pool, Tennis Court(s), Walking/Bike Paths

Condo/Association Info

Condo Type:
Bare Land Condo
Condo Amenities:
Beach Access, Clubhouse, Coin Laundry, Fitness Center, Game Court Interior, Indoor Pool, Park, Picnic Area, Playground, Racquet Courts, Recreation Room, Snow Removal, Spa/Hot Tub, Trash
Condo Fee:
$240
Condo Fee Includes:
Amenities of HOA/Condo, Caretaker, Professional Management, Reserve Fund Contributions, Snow Removal, Trash
Pets Allowed:
Yes

Acreage/Farm Info

Nearest Town:
Cochrane

Lot / Land Info

Lot Size:
0.08 acres
Lot Features:
Close to Clubhouse, Rectangular Lot, See Remarks
Water:
Other, Private
Sewer:
Septic Tank
Zoning:
DC123

Materials & Systems

Roof:
Asphalt Shingle
Exterior:
Brick,Cement Fiber Board,Concrete,Stone,Wood Frame
Floors:
Carpet, Tile, Vinyl Plank
Foundation:
Poured Concrete
Heating:
Fireplace(s), Forced Air, Natural Gas
Cooling:
None
Amenities:
Clubhouse, Gated, Lake, Park, Playground, Pool, Tennis Court(s), Walking/Bike Paths

Listing Info

Possession:
Upon Completion
Days on Market:
72
Related Properties
Share This Listing
Ask About This Property
  • This site is protected by reCAPTCHA and the Google Privacy Policy and Terms of Service apply.
Your Agent

Grassroots Realty Group Ltd.
1-833-477-6687

Email