Property Details

Featured in:

Winners:

Featured in:

Winners:

80 Heritage Manor
Cochrane (A2293313)

$569,000
3
2+1
1,806 ft²
Loading Listing...

Loan Term
Interest Rate
Loan Amount
Annual Tax
Ann. Insurance

* Amounts are estimates only. Final payment amounts may vary.

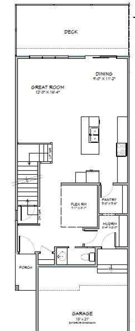
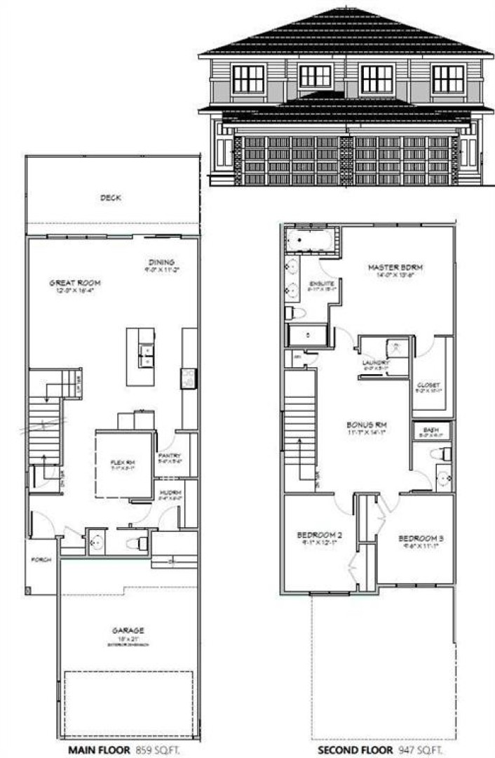
Description

OPEN HOUSE SATURDAY MARCH 14 (1.00PM TO 4.00PM) - WALK-OUT BASEMENT, SOUTH FACING BACKYARD, 22 FEET WIDE DECK WITH PANORAMIC VIEWS !!!!! Welcome to the Harris-ll, located in the newly developed community of West Hawk — a peaceful, nature-inspired neighborhood surrounded by scenic mountain views and steps from future parks. This thoughtfully designed home opens to a charming foyer that leads to a versatile flex room, a convenient half bathroom with vanity sink, and a direct access to the double car garage. At the rear of the home, the L-shaped kitchen with 42" cabinetry overlooks a spacious great room and dining area and a 22 feet wide deck overlooking a spacious backyard and — perfect for entertaining family and friends. Upstairs, you’re welcomed into a centrally located, spacious bonus room—perfect for family time or a cozy retreat. The second floor also features a large primary bedroom complete with a walk-in closet and private 5-piece ensuite. A spacious bonus room, two generously sized secondary bedrooms, a full bathroom, and a convenient laundry room complete the upper level. QUARTZ COUNTERTOPS THROUGHOUT, ALL UNDERMOUNT SINKS, POT LIGHTS IN KITCHEN INCLUDED, 9 FEET BASEMENT CEILING. Call now for more details !!! Interior pictures are for reference only and from other listing (108 Heritage Manor)

Property details

Basic Info

MLS® #
A2293313
Property Type:
Residential
Subtype:
Semi Detached (Half Duplex)
Subdivision:
NONE
Price
$569,000
Sale/Lease:
For Sale
Size:
1,806 sq.ft.
Bedrooms:
3
Bathrooms:
2 full / 1 half
Year Built:
2026 (0 years old)

Building Info

New Construction:
Yes
Builder:
Artistique Homes
Structure Type:
Duplex
Building Style:
2 Storey, Attached-Side by Side
Garage:
Yes
Parking:
Double Garage Attached
Fence:
Partial
Basement:
Full
Features:
Breakfast Bar, High Ceilings, Kitchen Island, Pantry, Quartz Counters, Separate Entrance, Soaking Tub
Inclusions:
NA
Appliances:
Dishwasher, Electric Range, Garage Control(s), Microwave Hood Fan, Refrigerator
Laundry:
Laundry Room, Upper Level
Exterior Features:
BBQ gas line, Lighting, Private Entrance, Private Yard
Patio/Porch Features:
Deck

Neighborhood Info

Nearby Amenities:
Playground, Schools Nearby, Shopping Nearby, Sidewalks, Street Lights

Lot / Land Info

Lot Size:
0.07 acres
Lot Features:
Back Yard, City Lot, Front Yard, Sloped Down
Zoning:
R-MX

Materials & Systems

Roof:
Asphalt Shingle
Exterior:
Vinyl Siding,Wood Frame
Floors:
Vinyl Plank
Foundation:
Poured Concrete
Heating:
Forced Air, Natural Gas
Cooling:
None
Amenities:
Playground, Schools Nearby, Shopping Nearby, Sidewalks, Street Lights

Listing Info

Possession:
Upon Completion
Related Properties
Share This Listing
Ask About This Property
  • This site is protected by reCAPTCHA and the Google Privacy Policy and Terms of Service apply.
Your Agent

Grassroots Realty Group Ltd.
1-833-477-6687

Email