Property Details

Featured in:

Winners:

Featured in:

Winners:

233 31 Street N
Lethbridge (A2269126)

$10 per sq.ft.
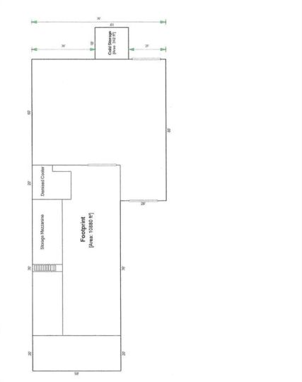
10,880 ft²
Loading Listing...

Loan Term
Interest Rate
Loan Amount
Annual Tax
Ann. Insurance

* Amounts are estimates only. Final payment amounts may vary.

Description

Air conditioning throughout including the warehouse. The building offers overhead doors, loading docks, warehouse, mezzanine, reception and offices. Onsite parking and storage.

Property details

Basic Info

MLS® #
A2269126
Property Type:
Commercial
Subtype:
Industrial
Subdivision:
Anderson Industrial Park
Price
$10 per sq.ft.
Sale/Lease:
For Lease
Size:
10,880 sq.ft.
Year Built:
1968 (58 years old)

Building Info

Structure Type:
Industrial
Garage:
No
Fence:
Basement:
No
Inclusions:
None

Listing Info

Possession:
Negotiable
Days on Market:
105
Related Properties
Share This Listing
Ask About This Property
  • This site is protected by reCAPTCHA and the Google Privacy Policy and Terms of Service apply.
Your Agent

Grassroots Realty Group Ltd.
1-833-477-6687

Email